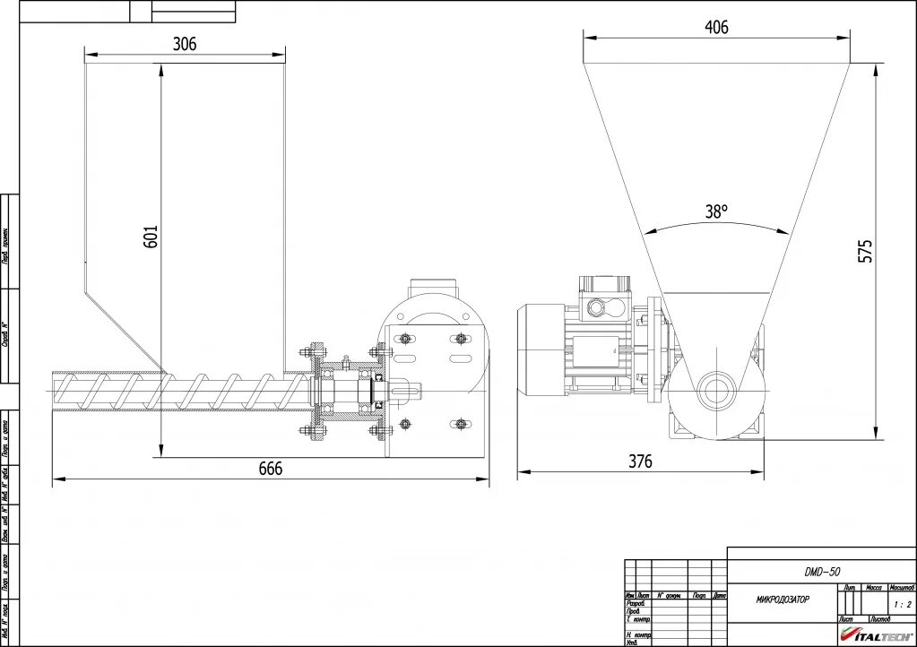
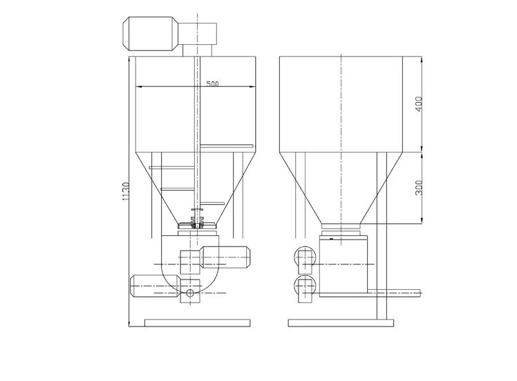
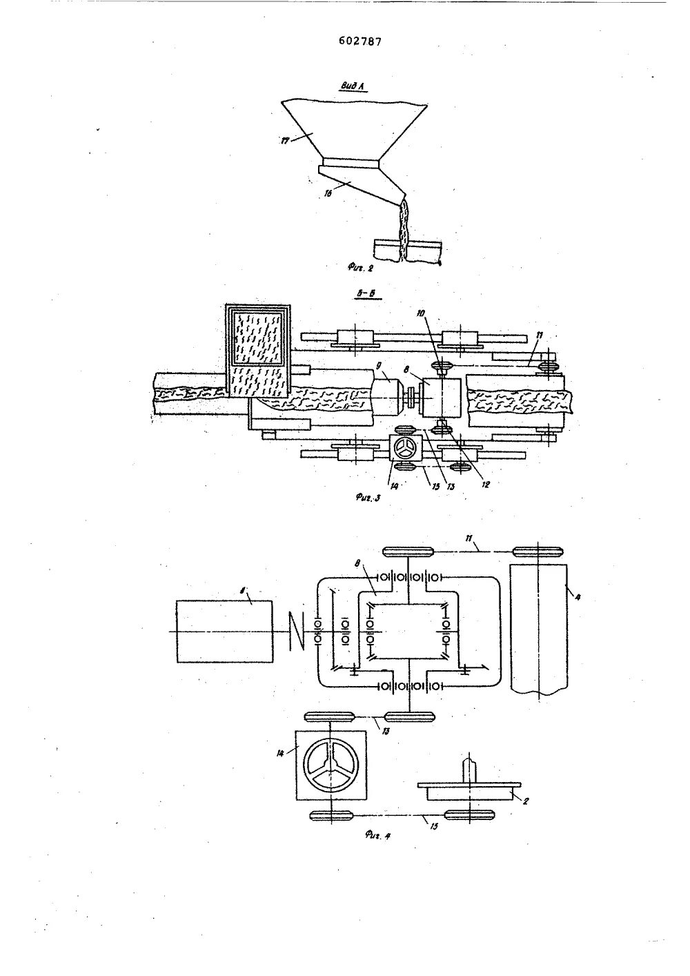
Микродозатор сыпучих материалов