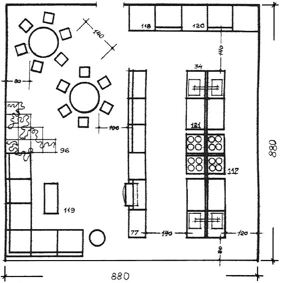
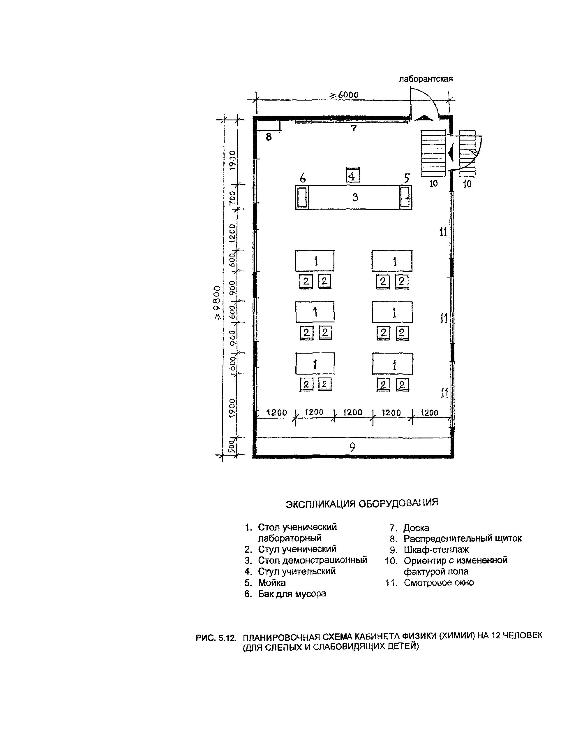
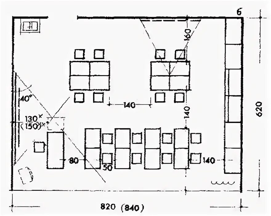
Мгсн предприятия питания