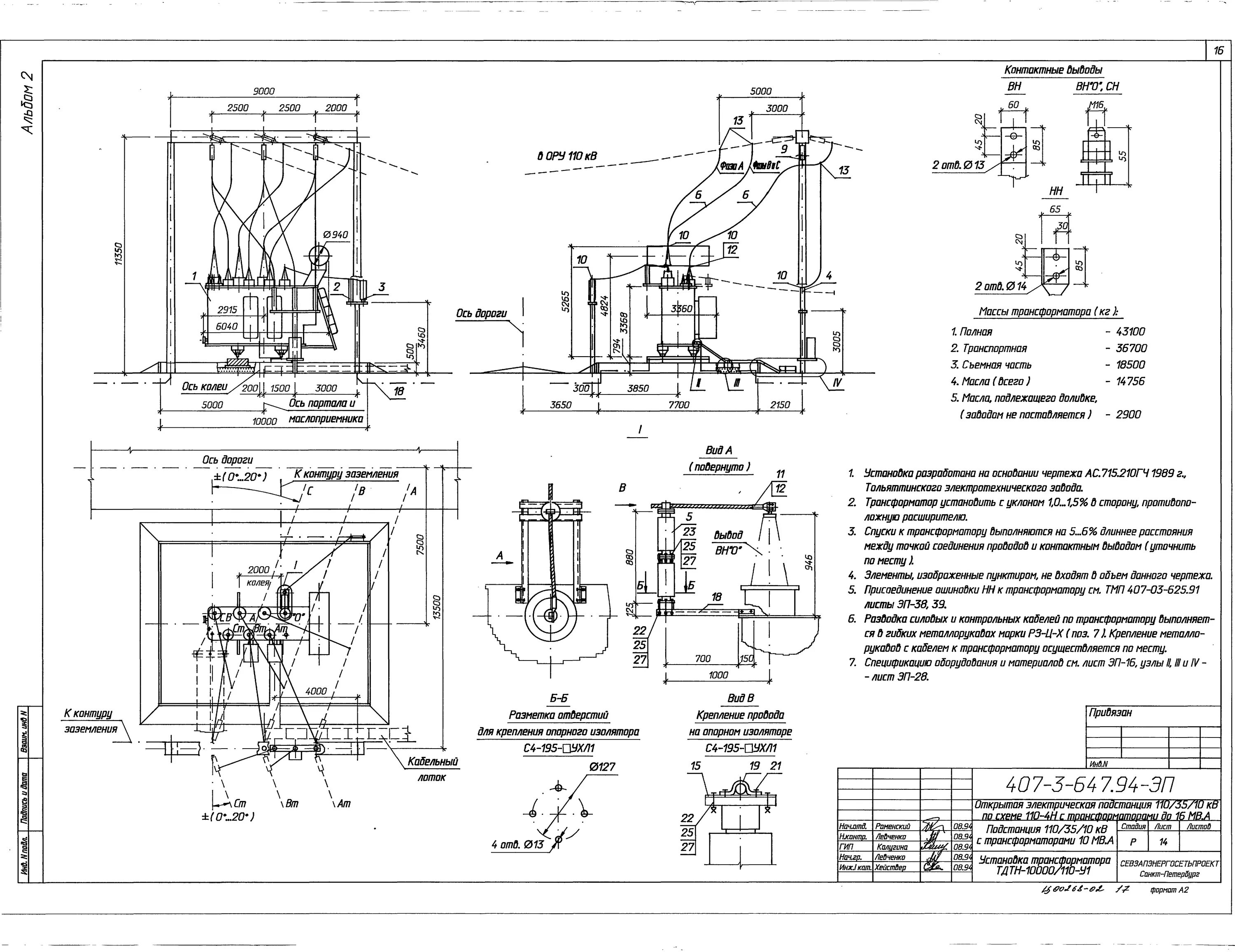
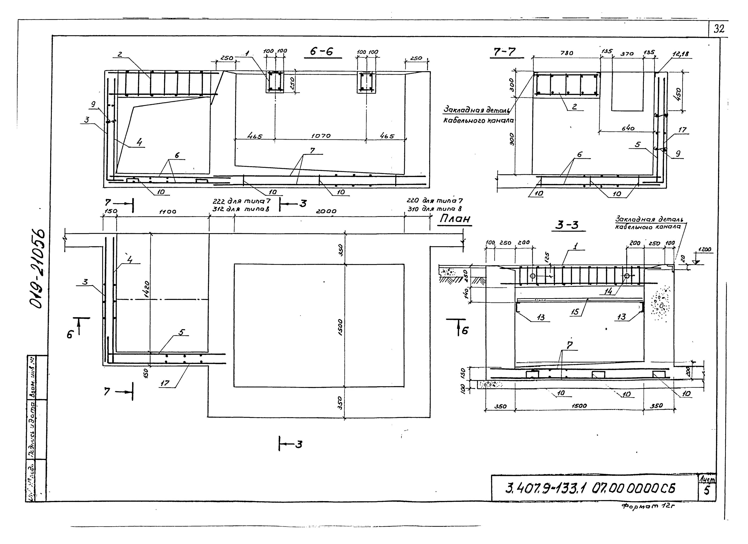
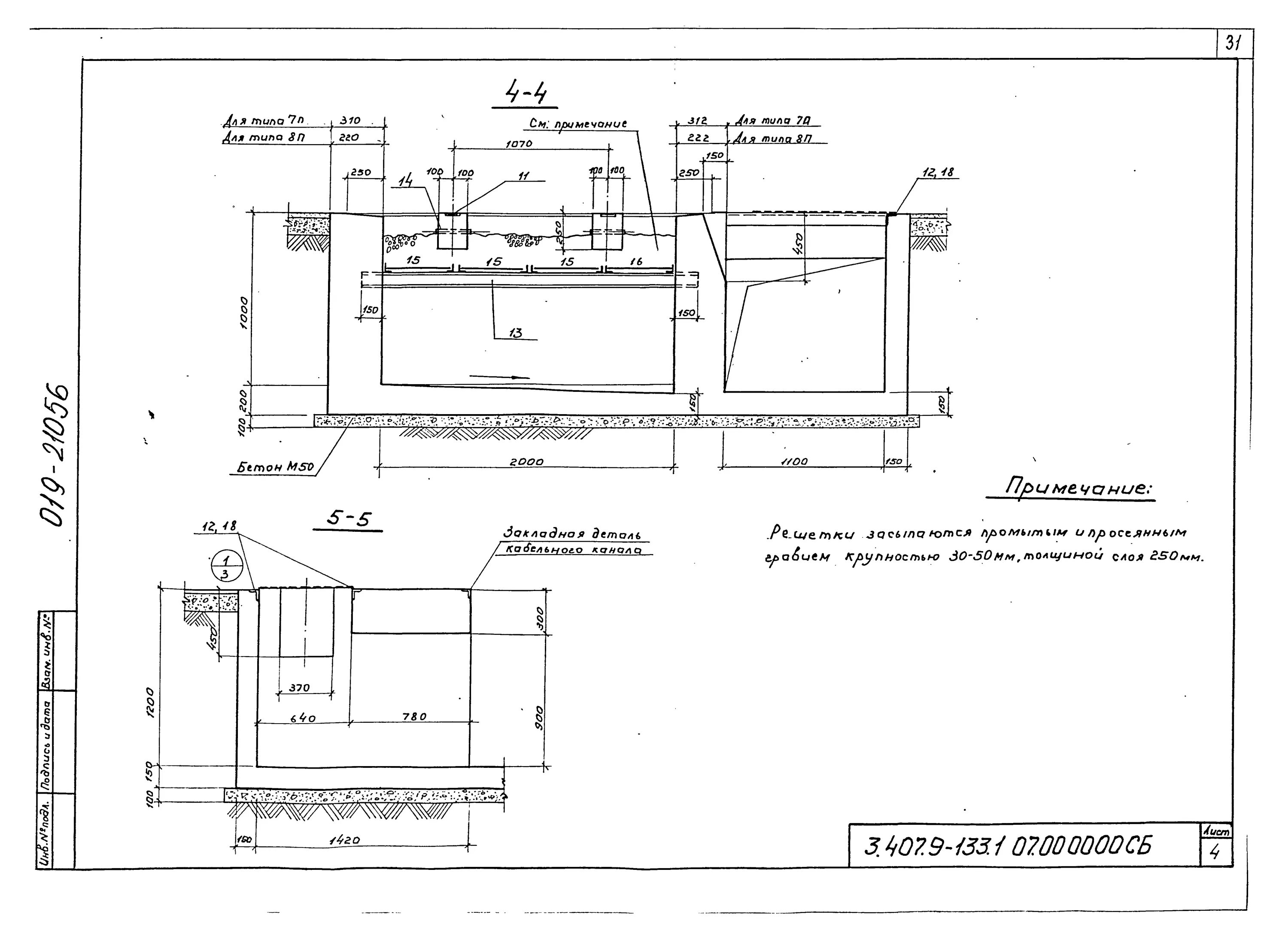
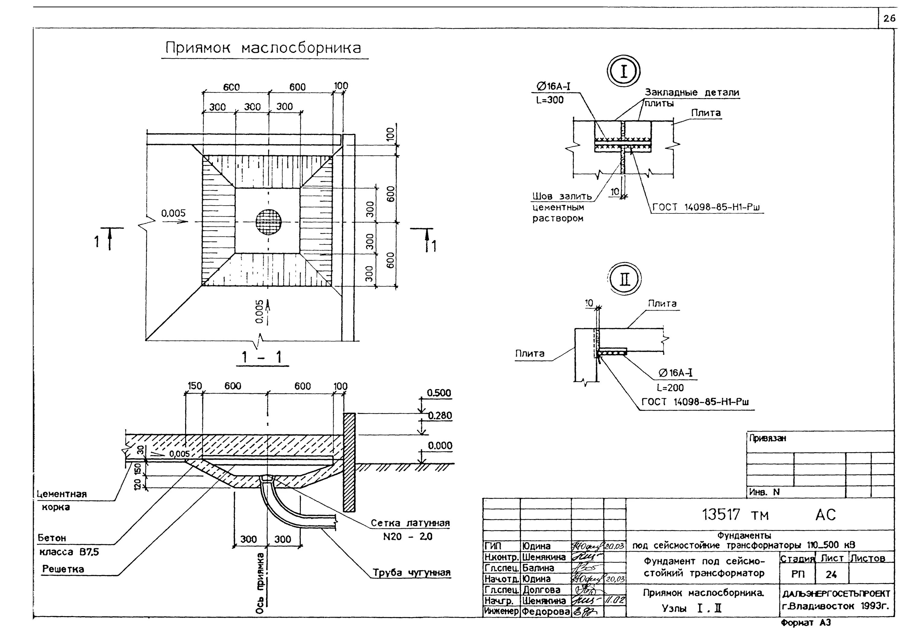
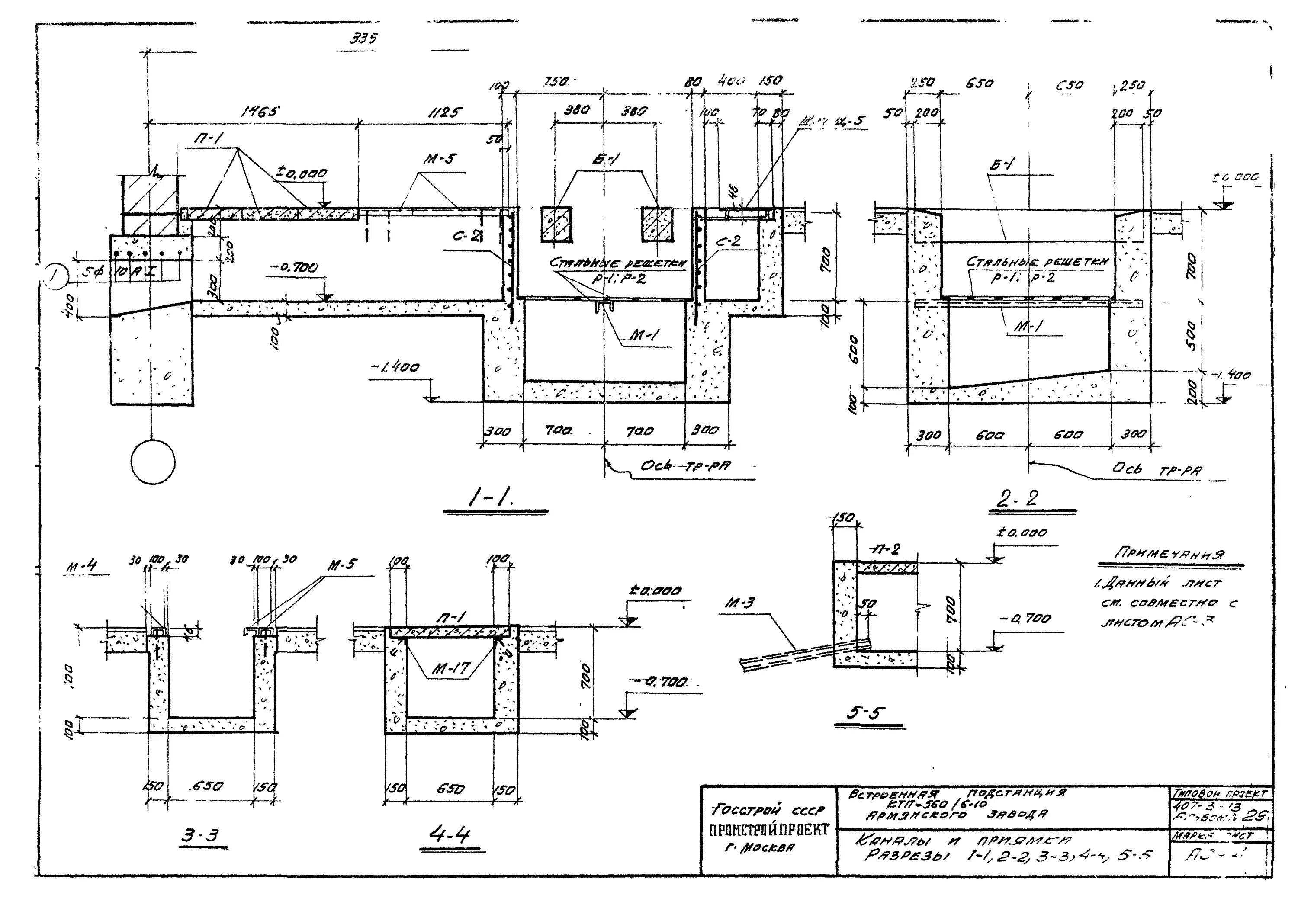
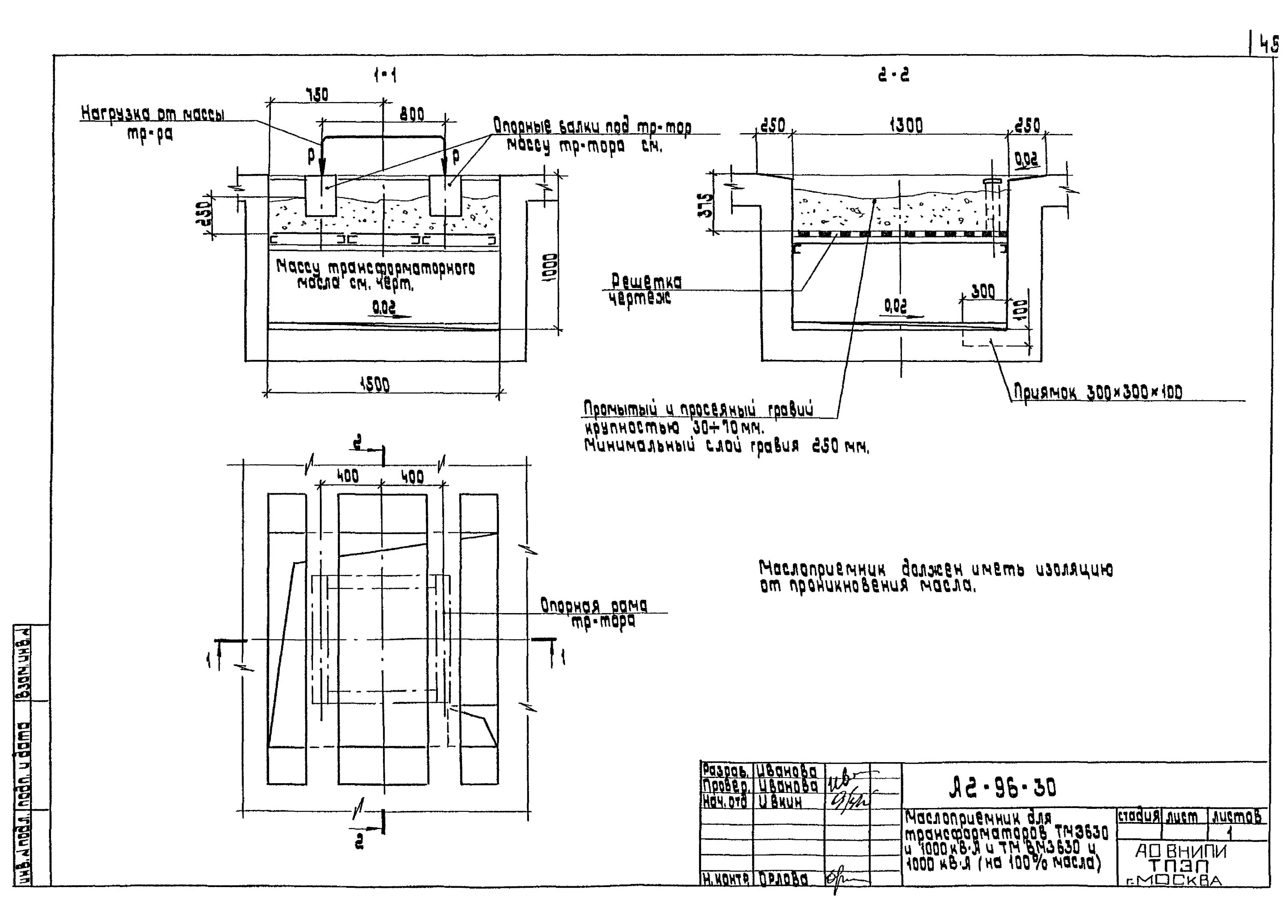
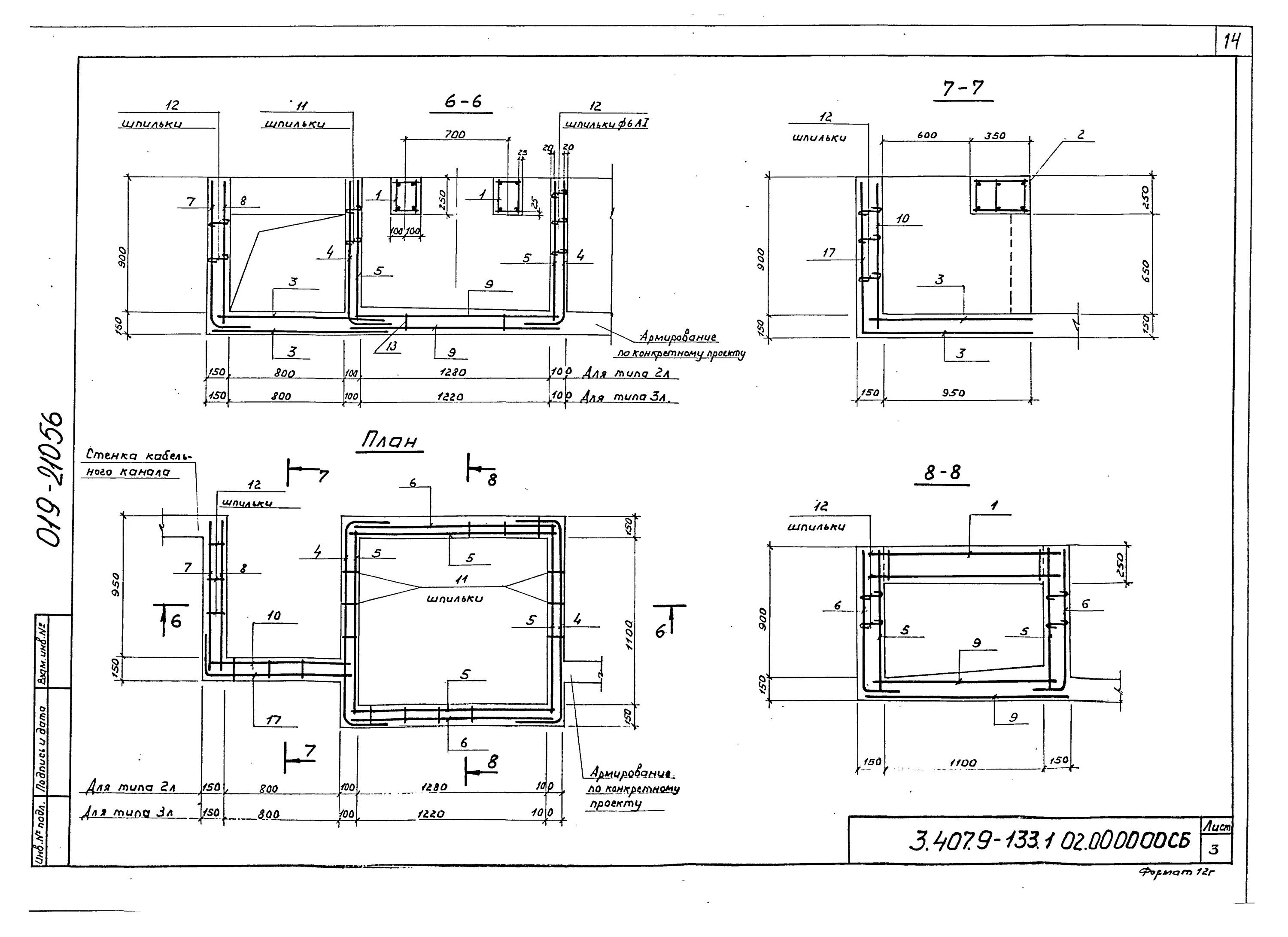
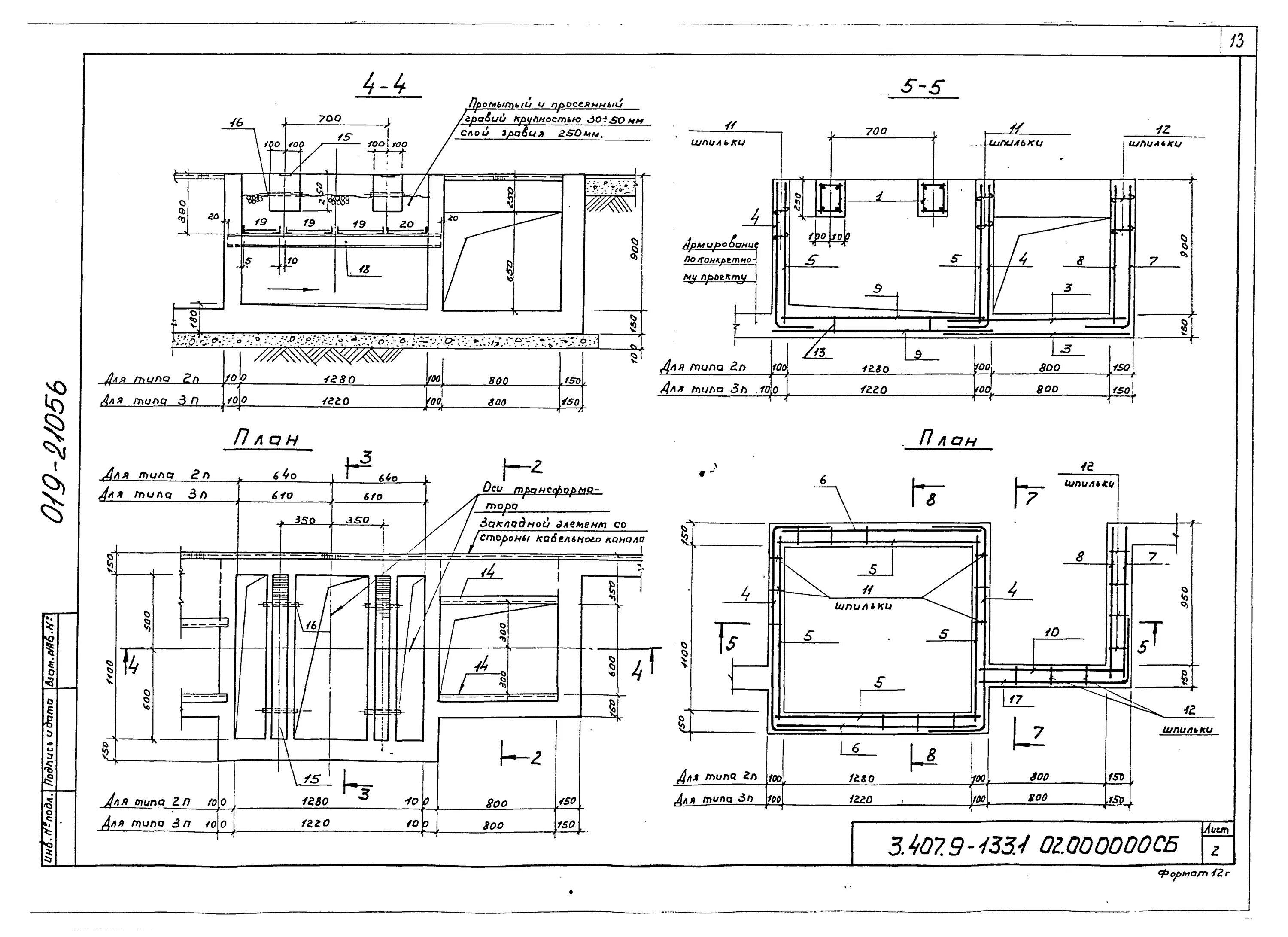
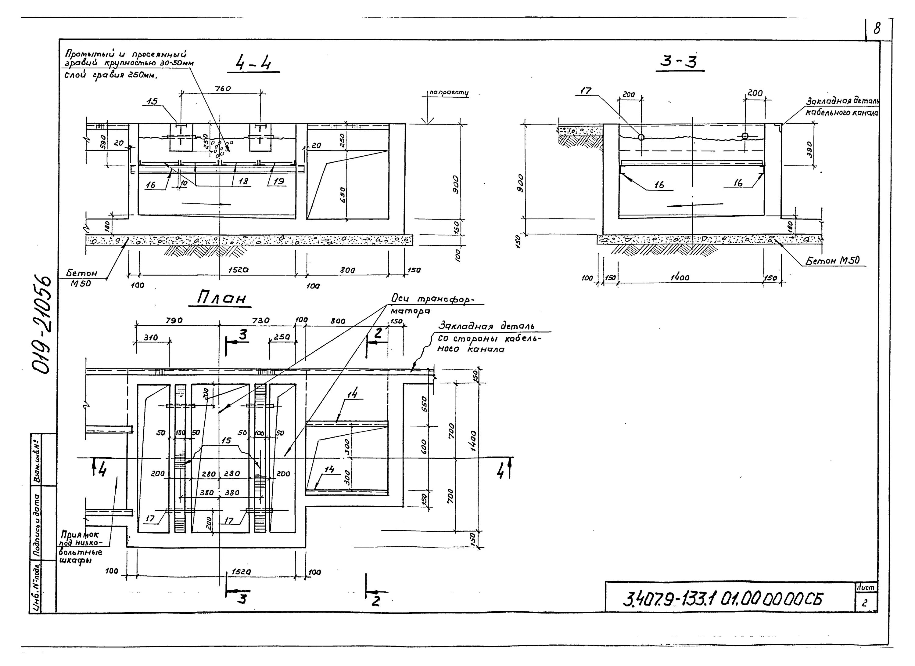
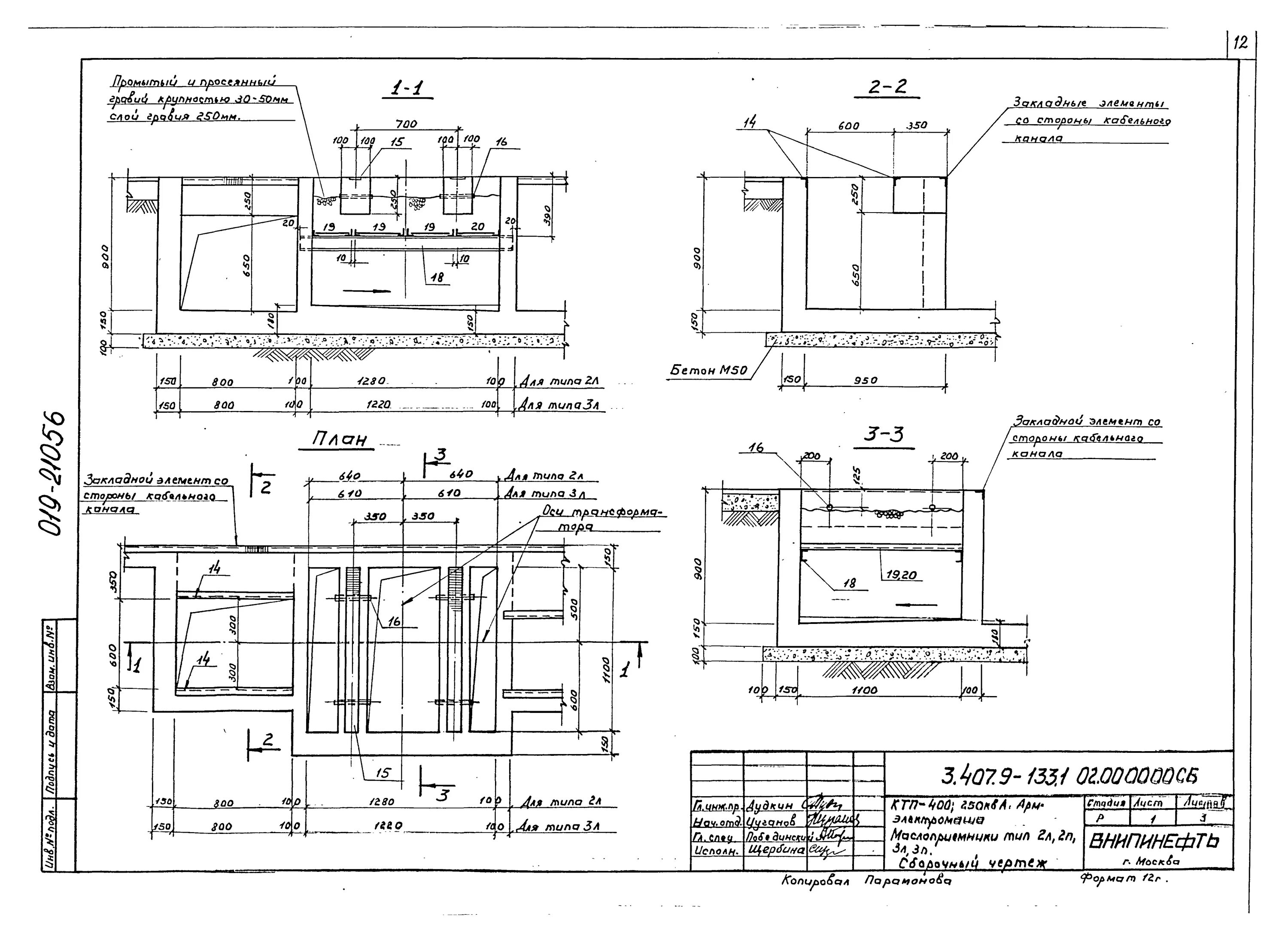
Маслоприемник под трансформатор