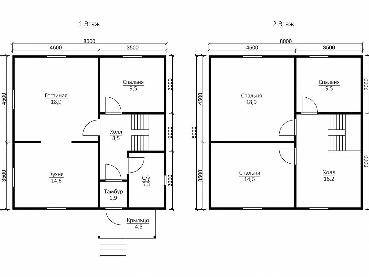
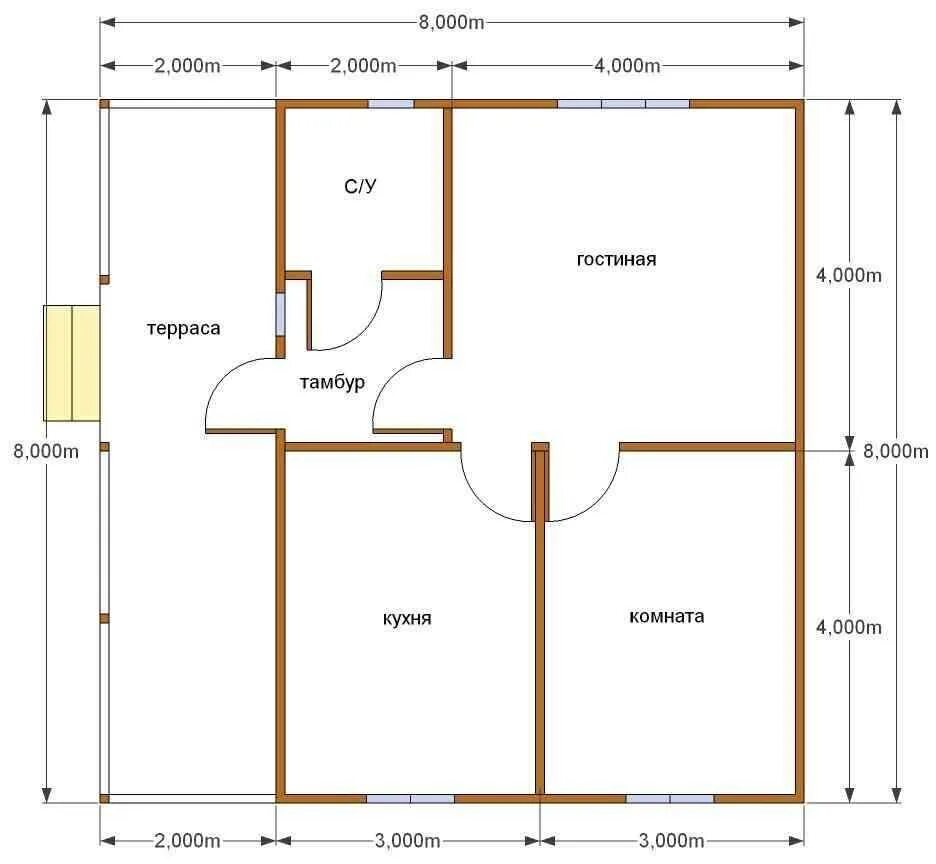
Лучший проект 8 на 8