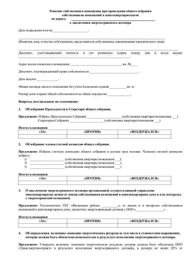
Лист решения собственника