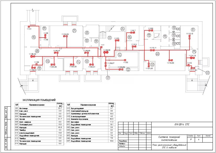
Линии пожарной сигнализации