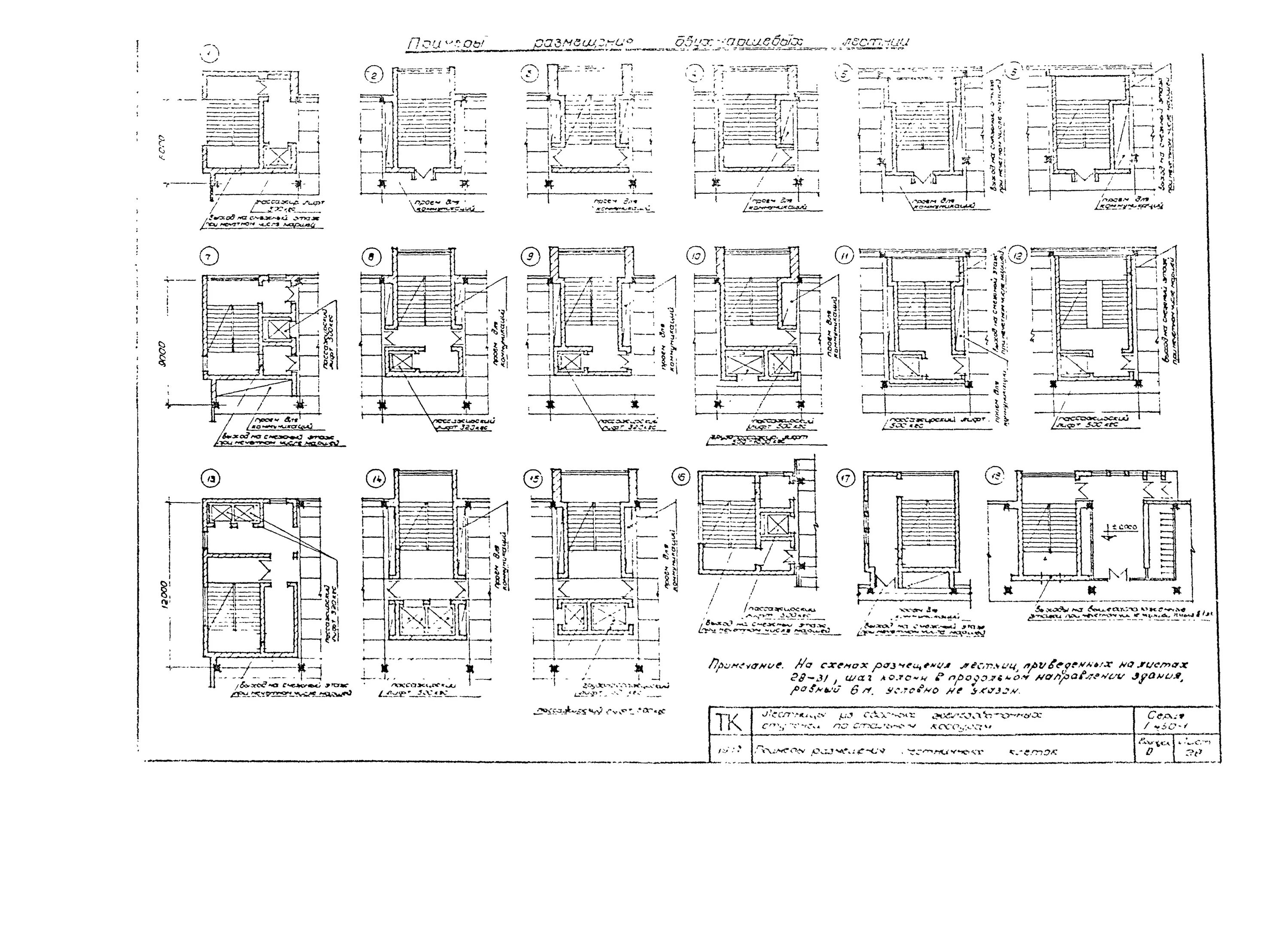
Лестница типа л1