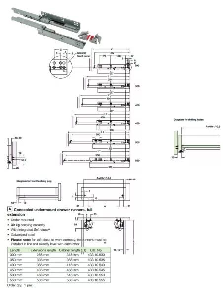
Lemax prof монтаж