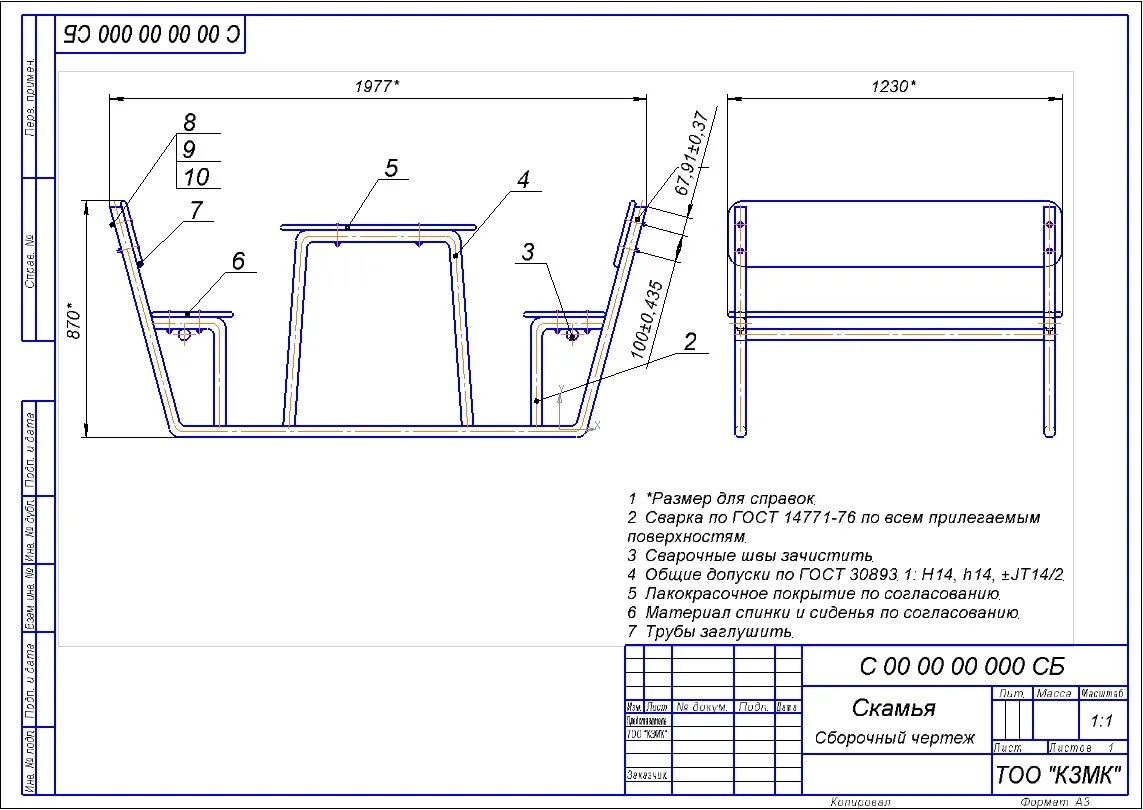
Лавка стол трансформер чертежи и размеры