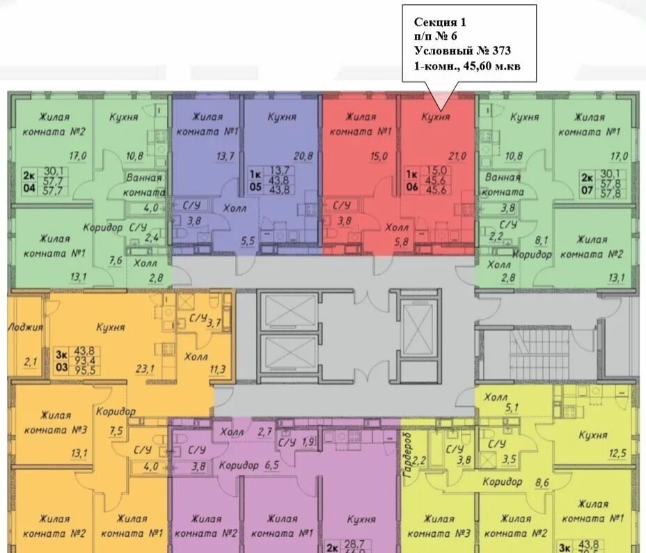
Квартиры на совхозной в химках