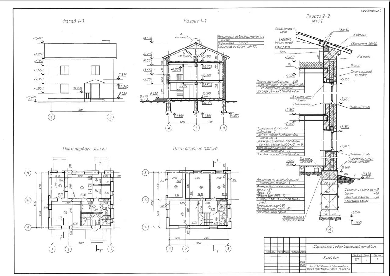
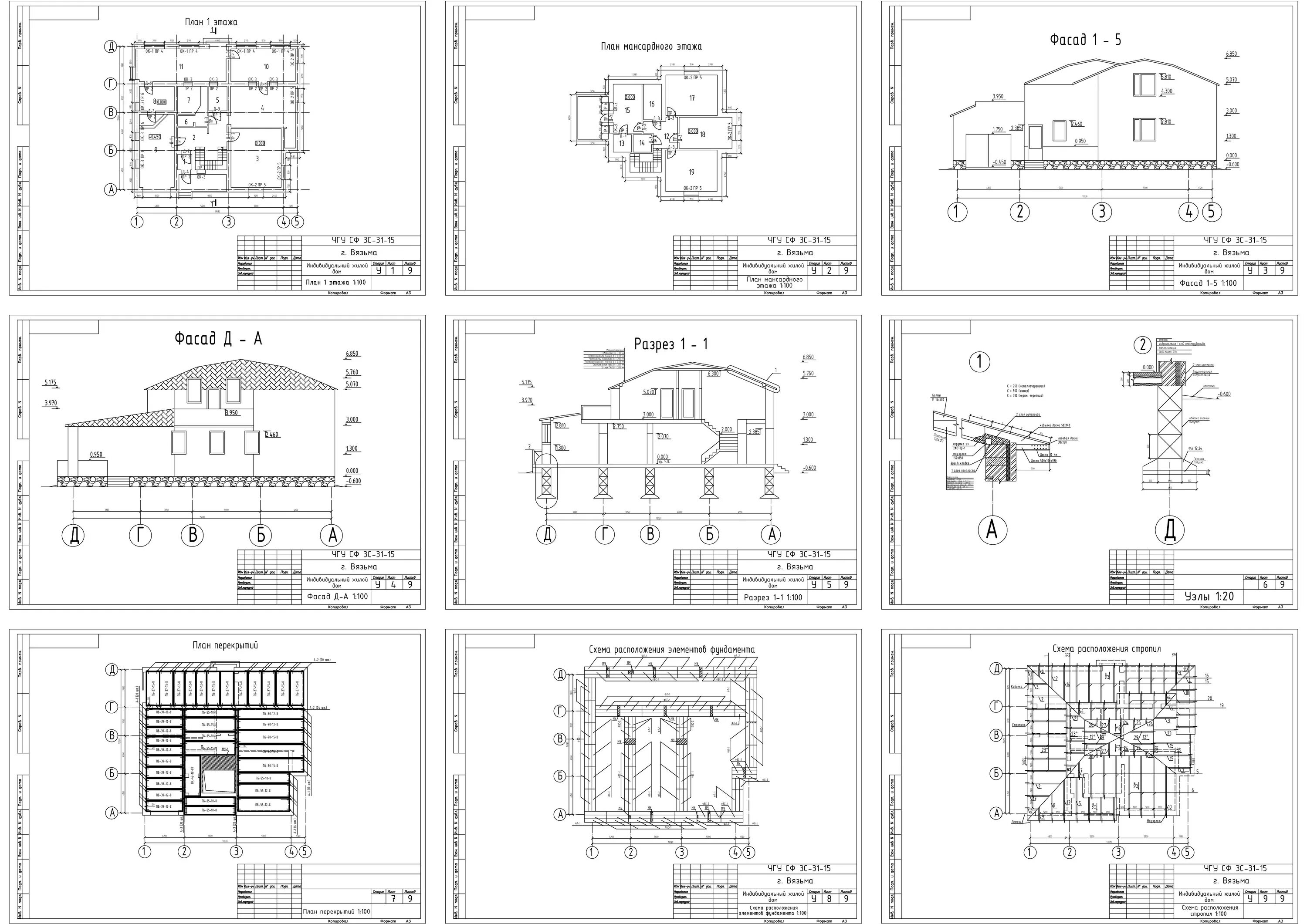
Курсовая работа жилое здание