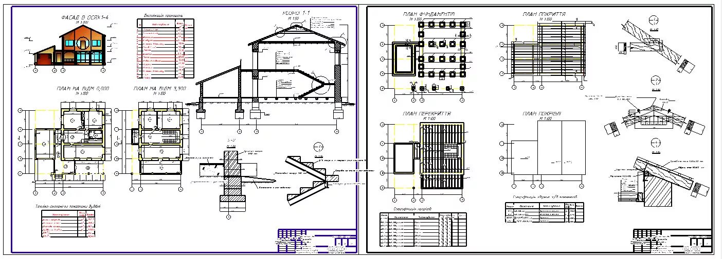
Курсовая работа по проектированию