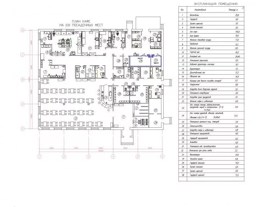
Курсовая работа общественного питания