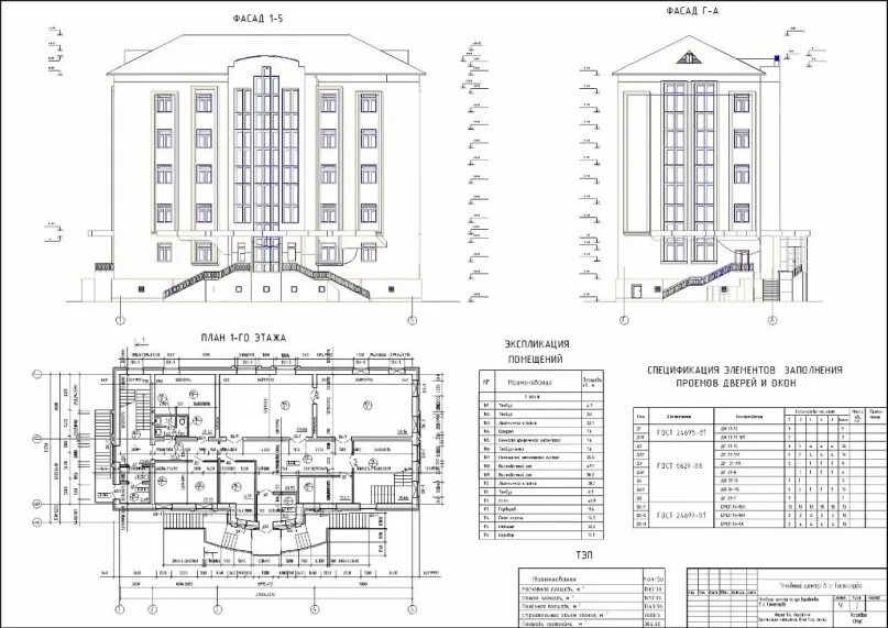
Курсовая работа на тему гостиницы