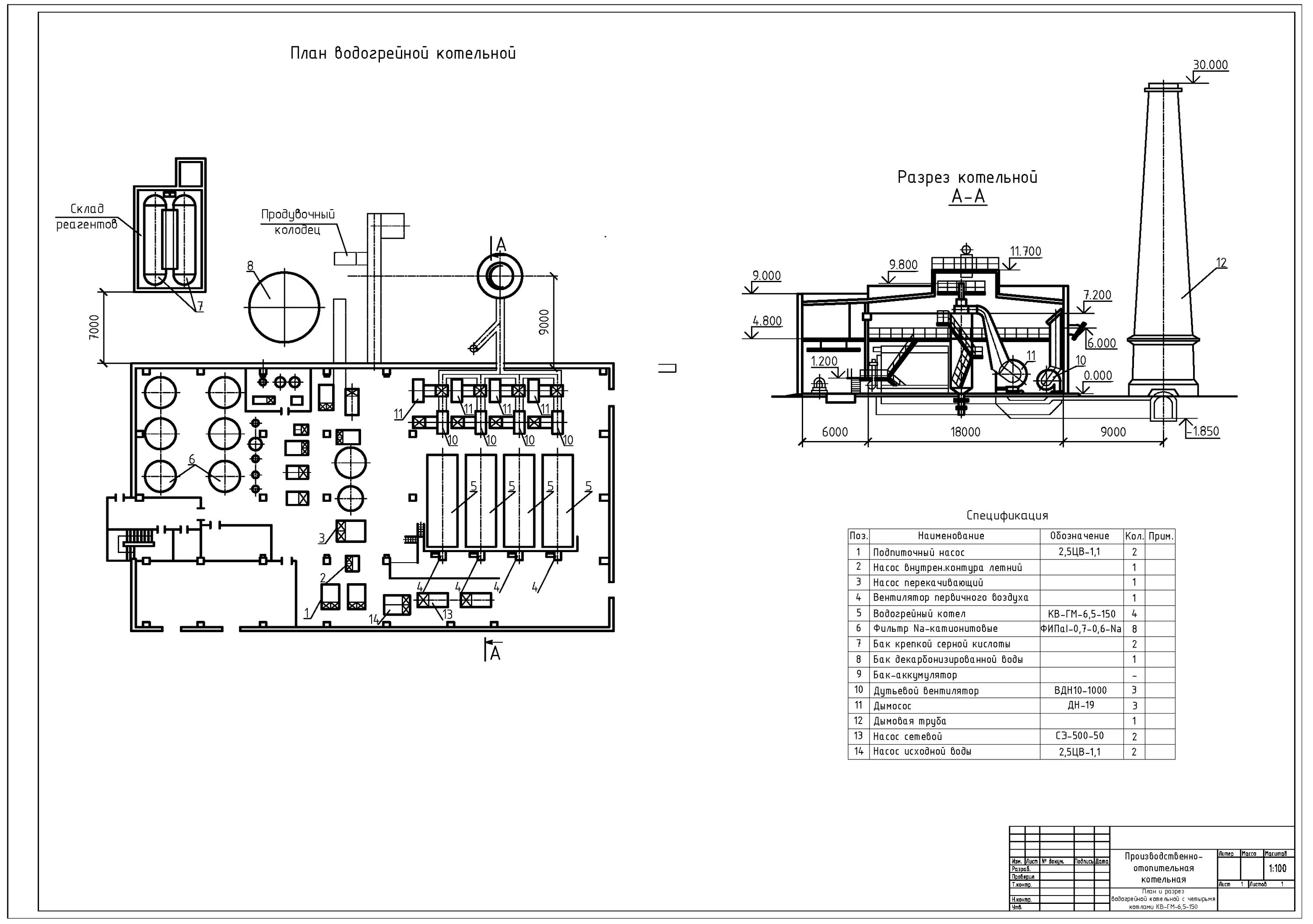
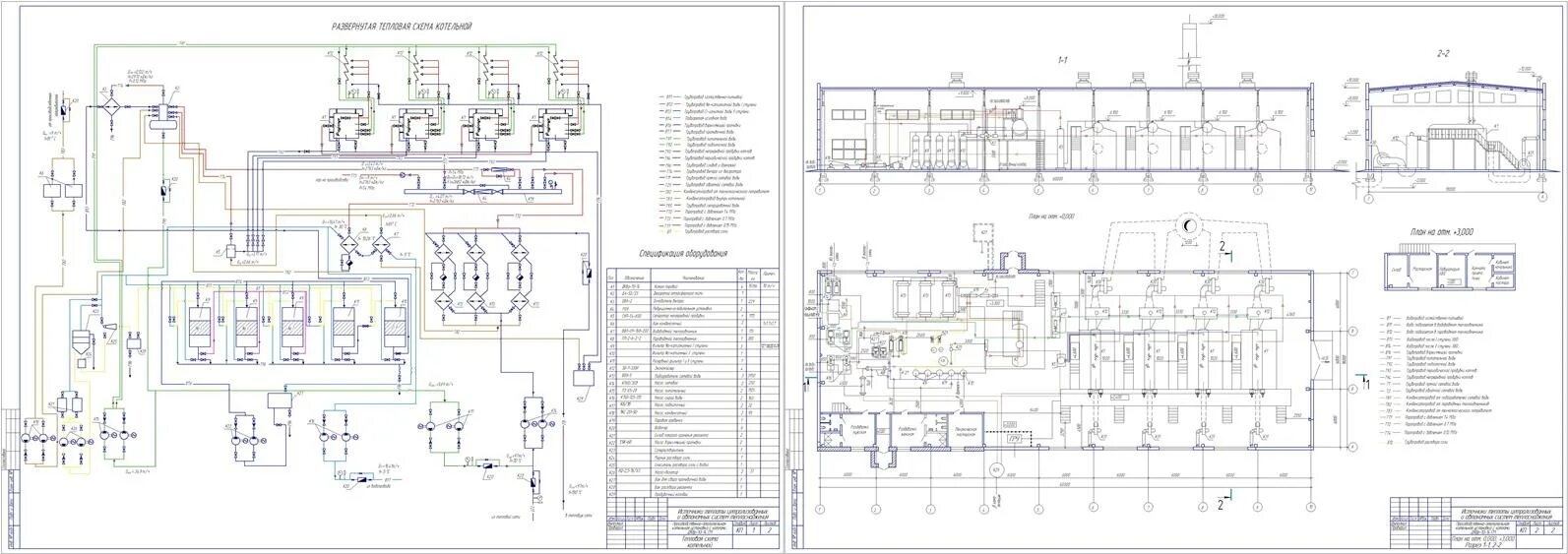
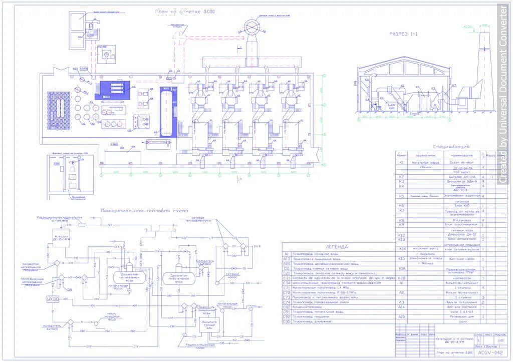
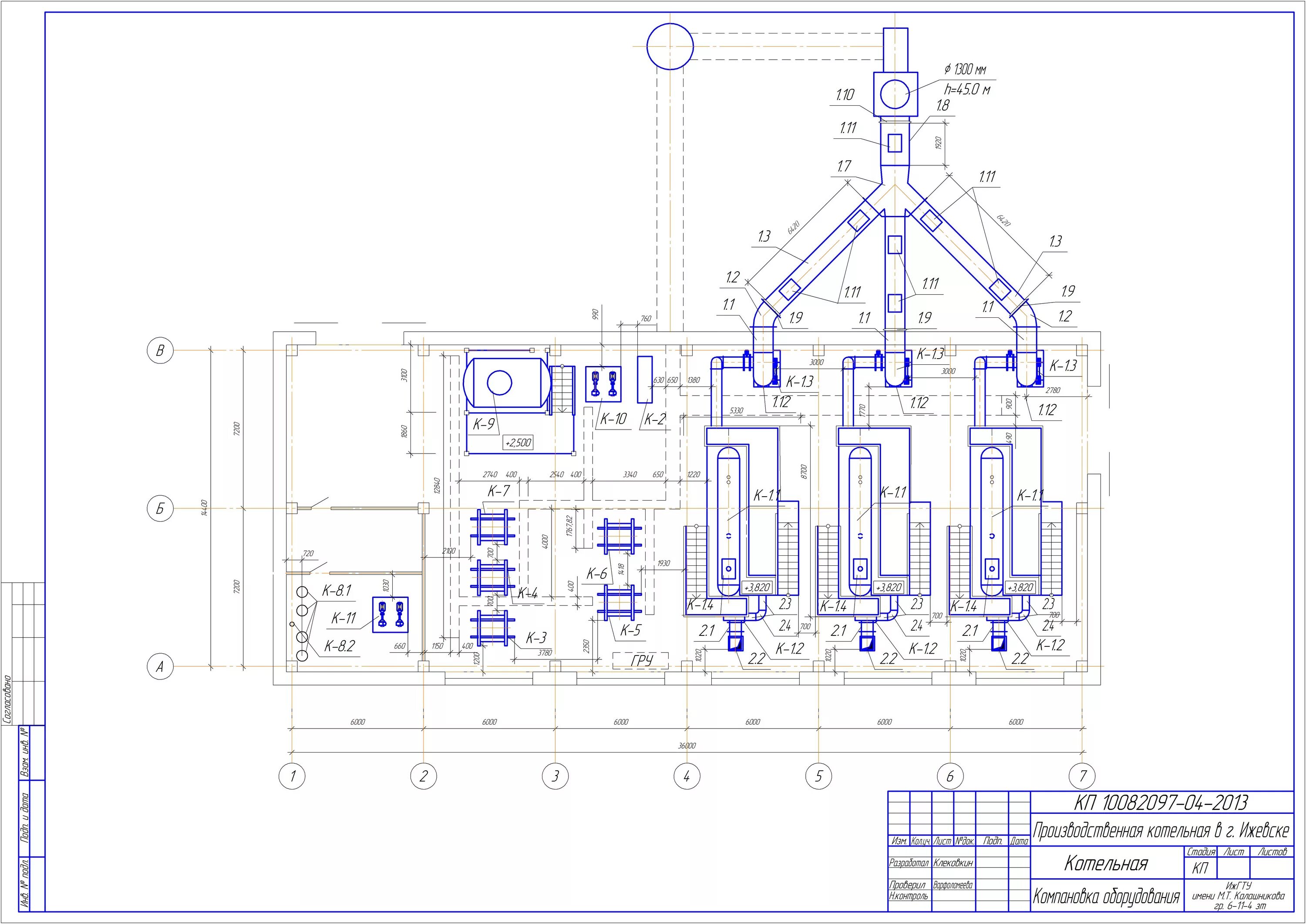
Курсовая котельные установки