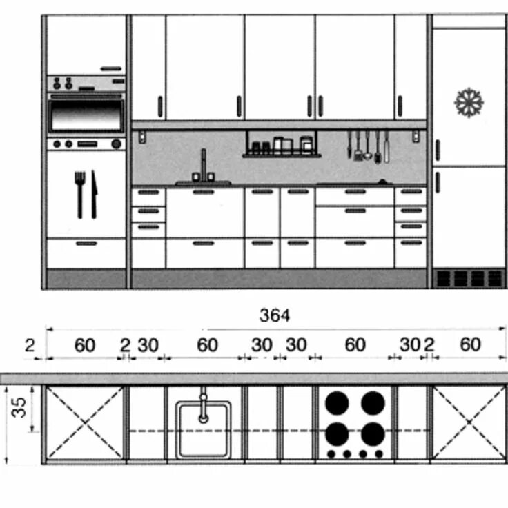
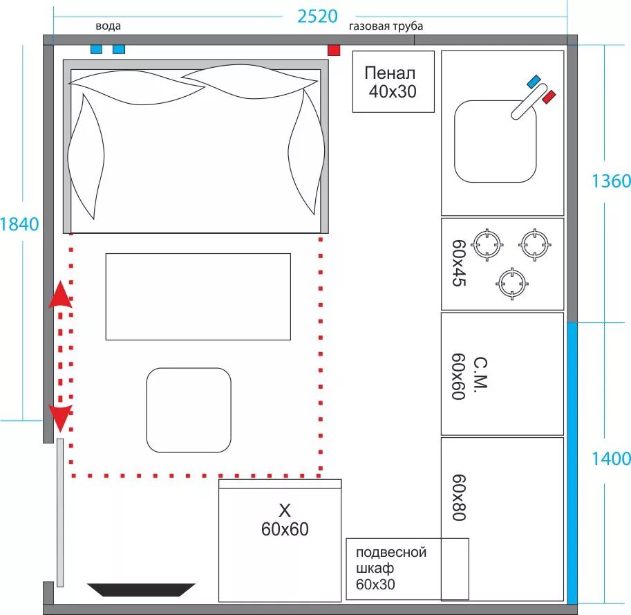
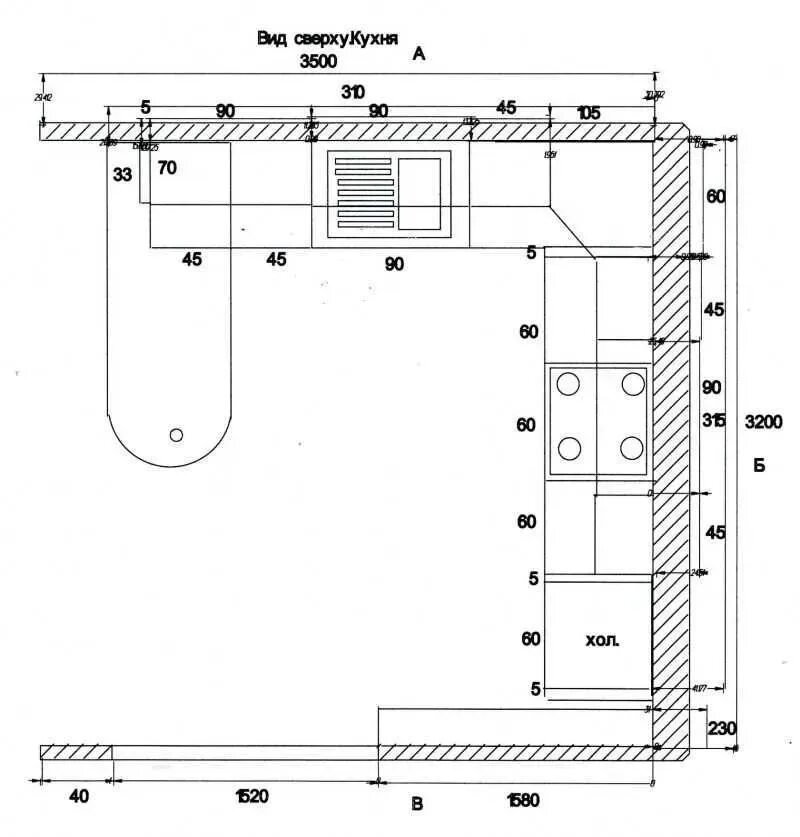
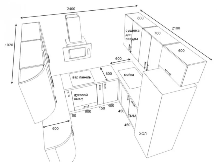
Кухня схема расположения