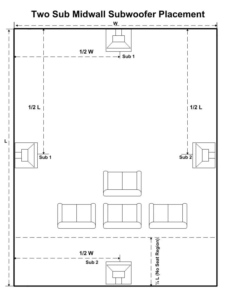
Куда ставить сабвуфер