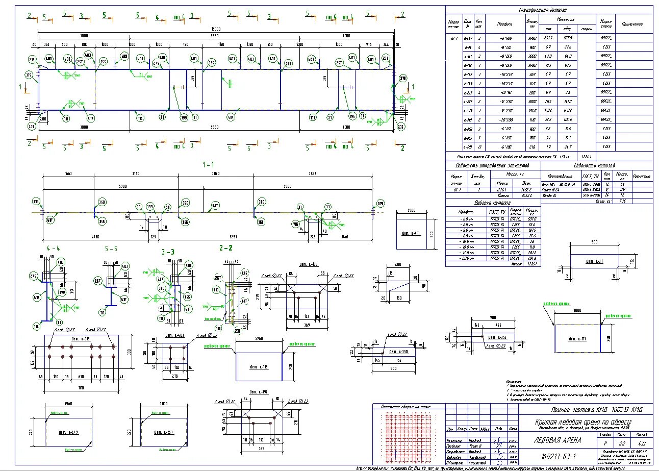
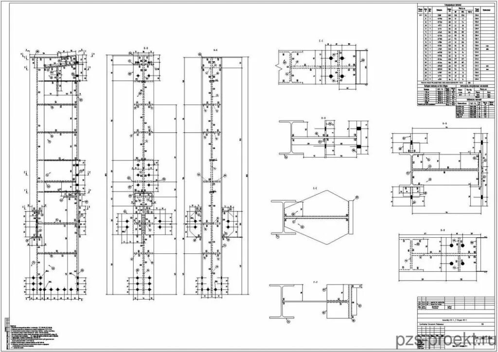
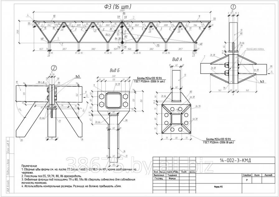
Кто разрабатывает кмд