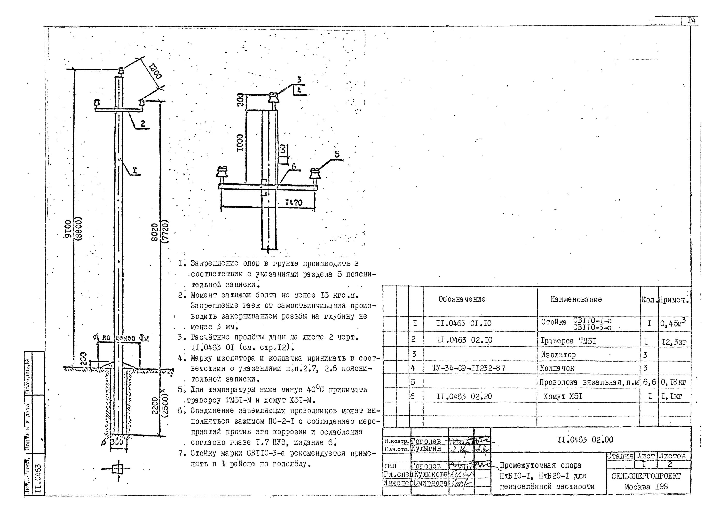
Крепление ж б опор