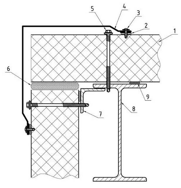
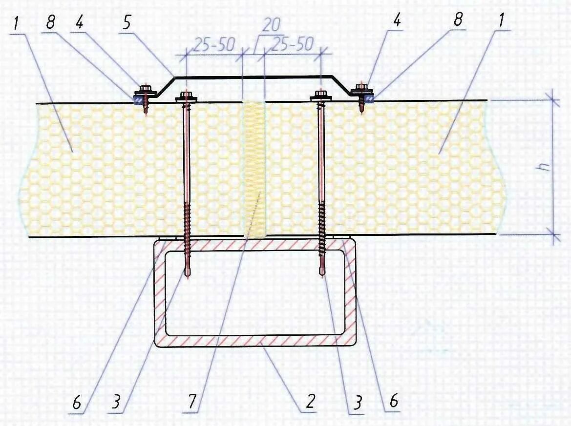
Крепление стеновых сэндвич панелей