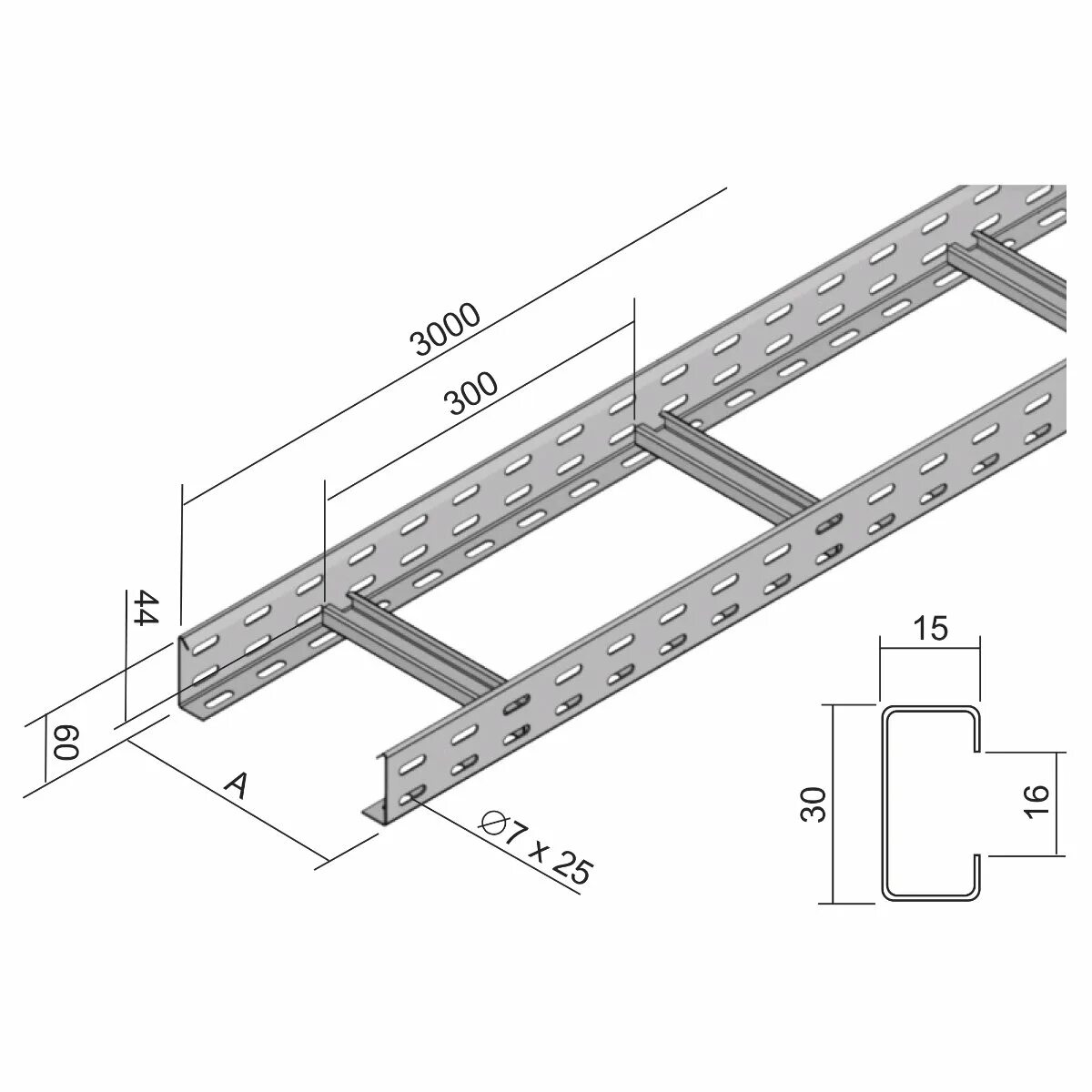
Крепление лестничного лотка