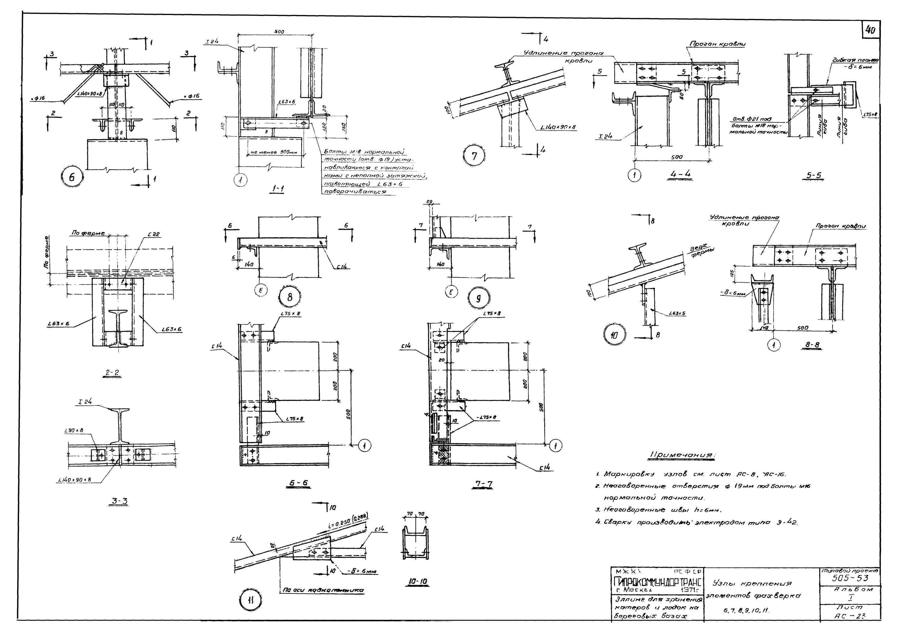
Крепление фахверковых