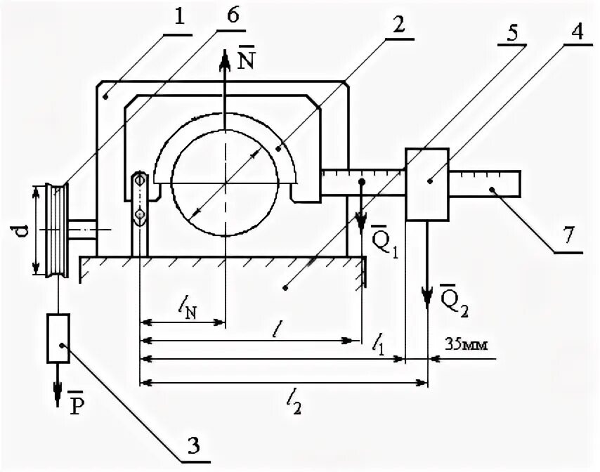
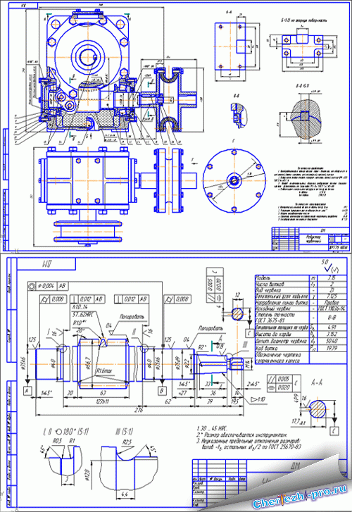
Кпд червячного редуктора