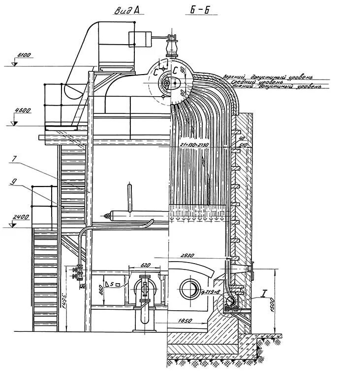
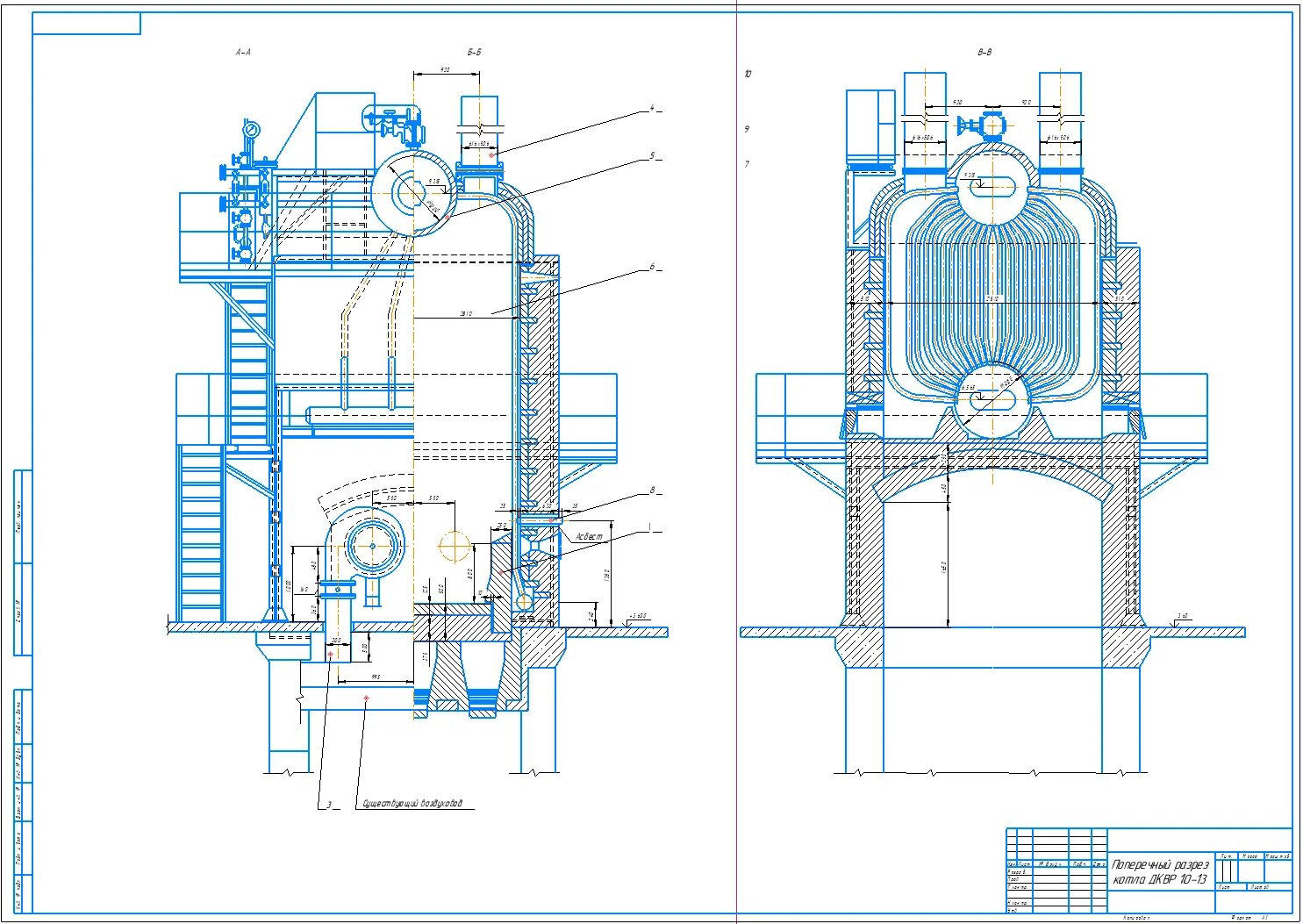
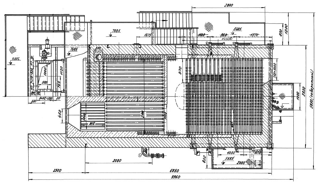
Котел 10 13 работа