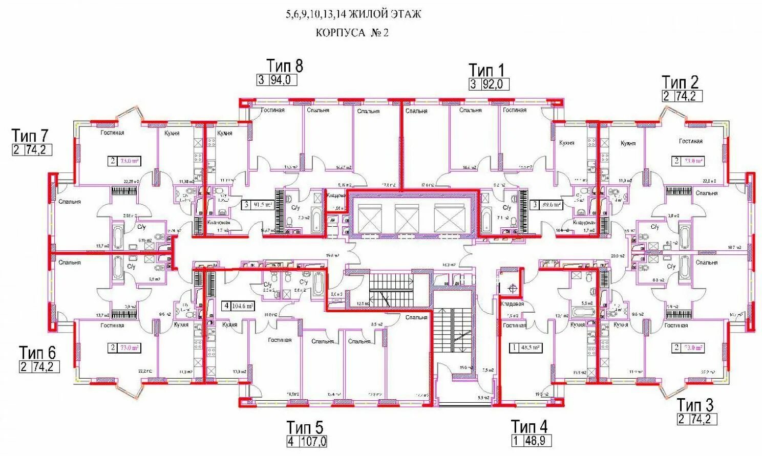
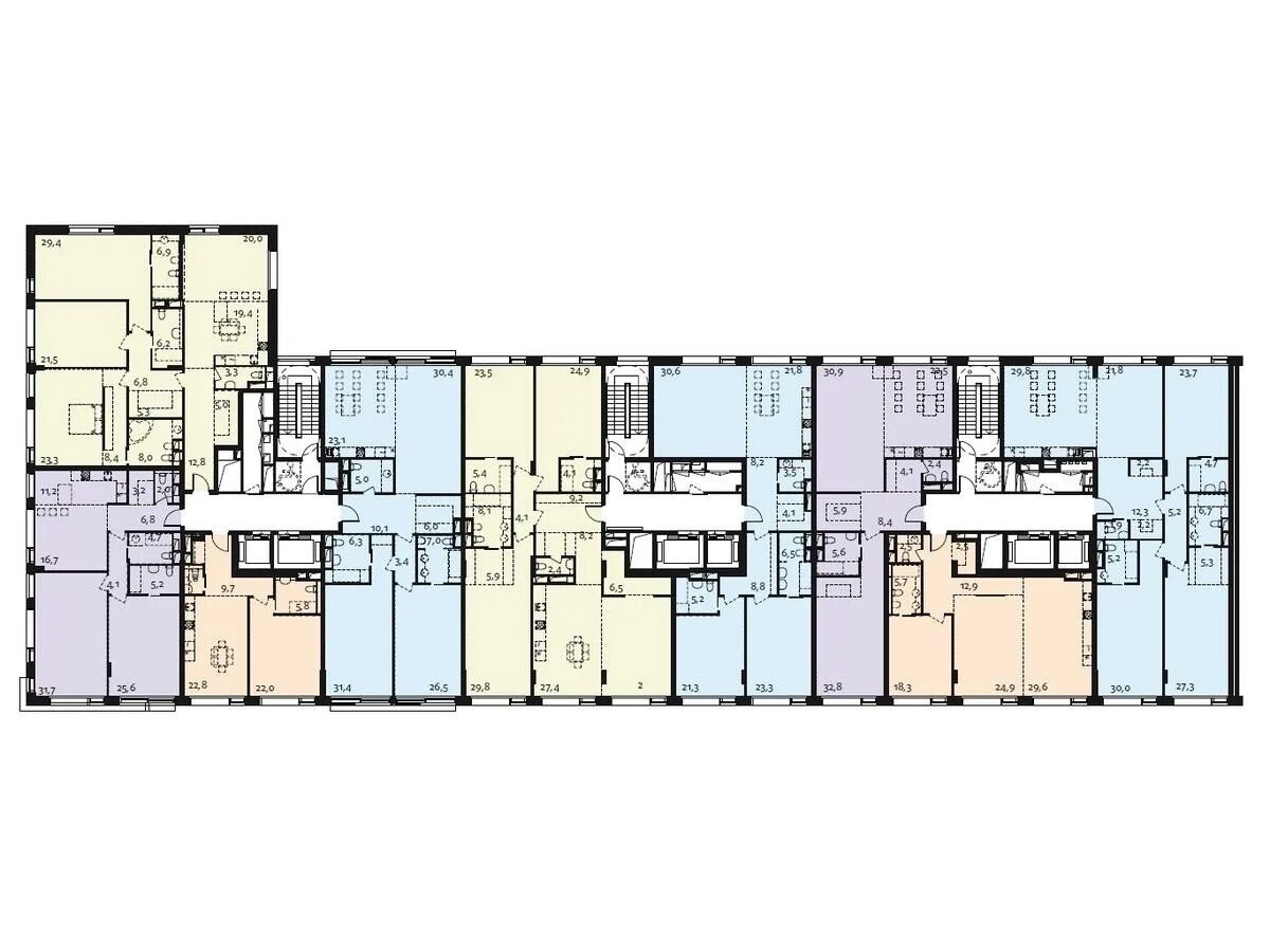
Корп 3 этаж