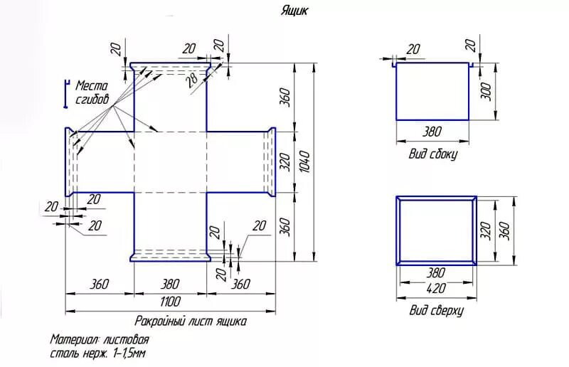
Коптильня горячего копчения из нержавейки своими руками