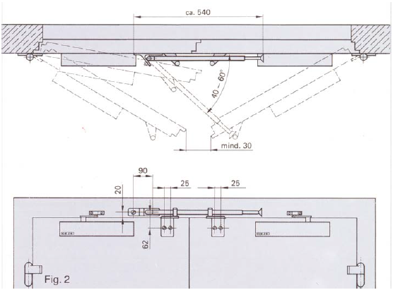
Координация последовательного закрывания