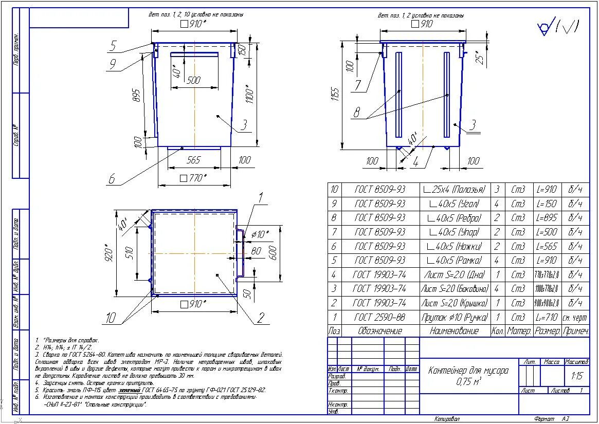
Контейнер 1 1 м3 размеры