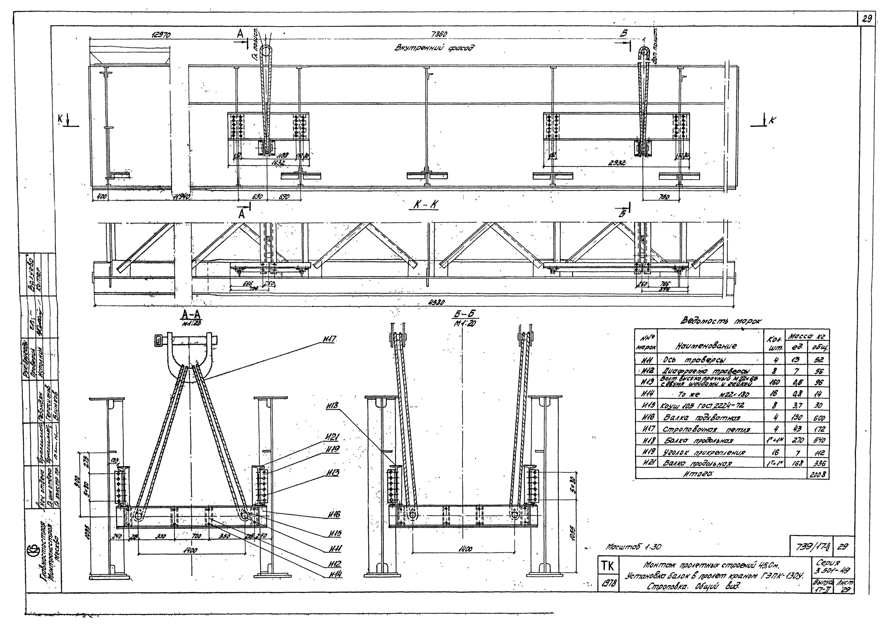
Конструкция пролетного строения