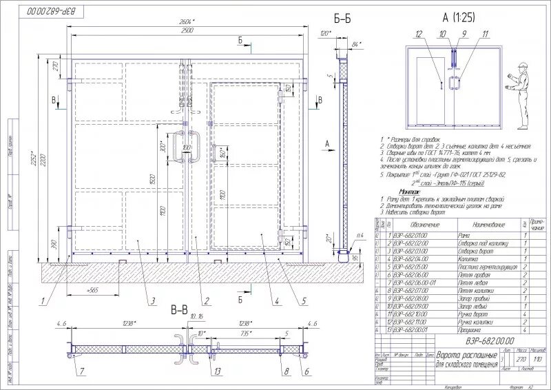
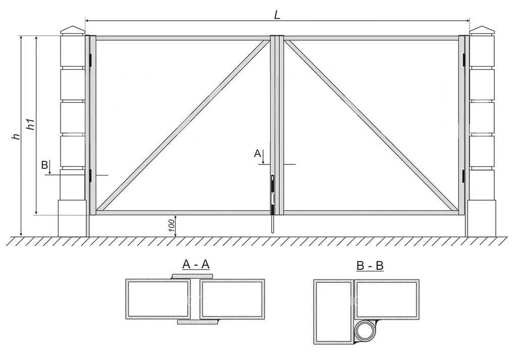
Конструкции ворот металлических