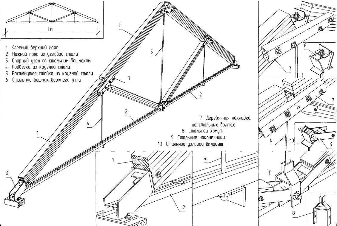
Конструкции скатных