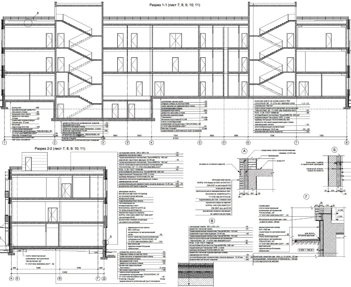
Конструктивные решения общественных зданий