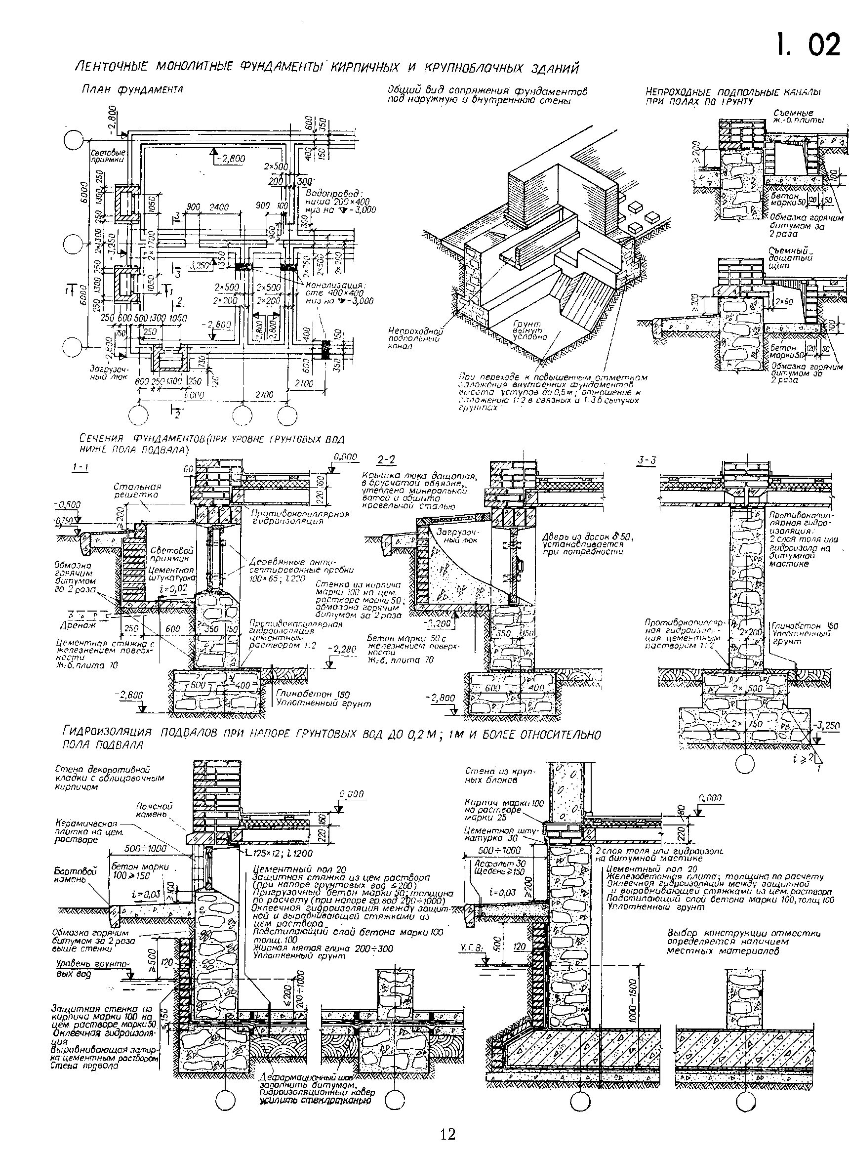
Конструктивные решения ленточных фундаментов