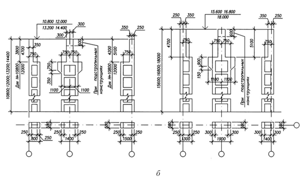
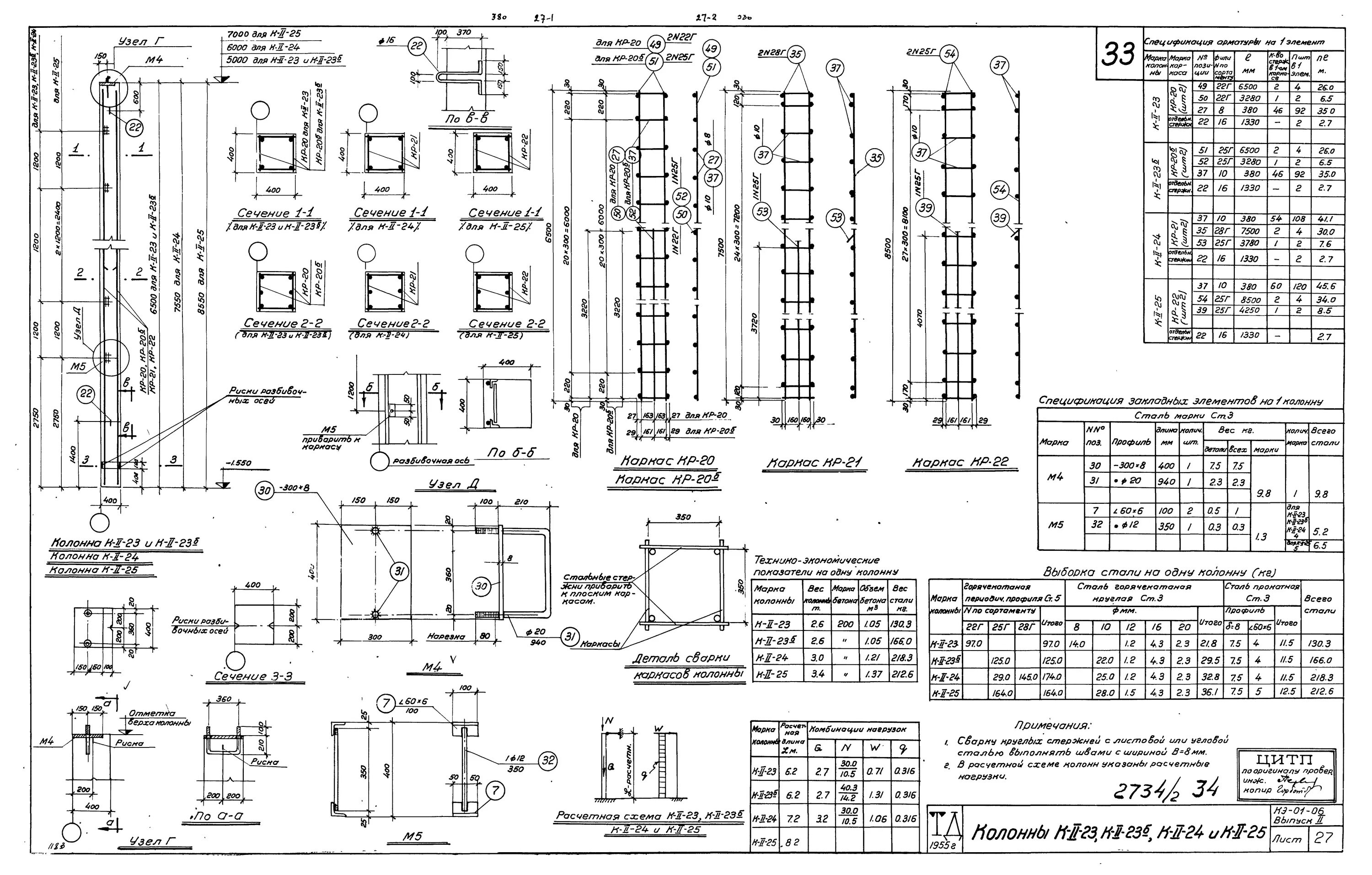
Колонны жб зданий