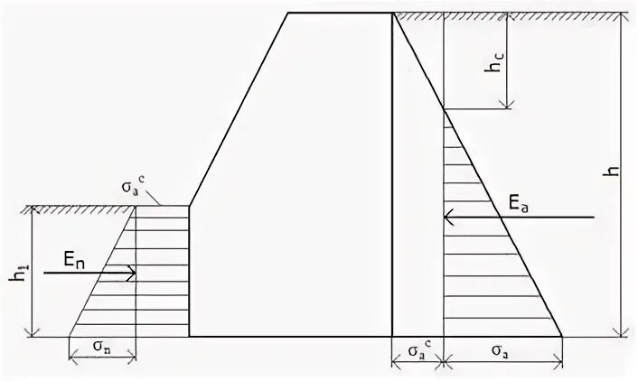
Коэффициент бокового давления грунта