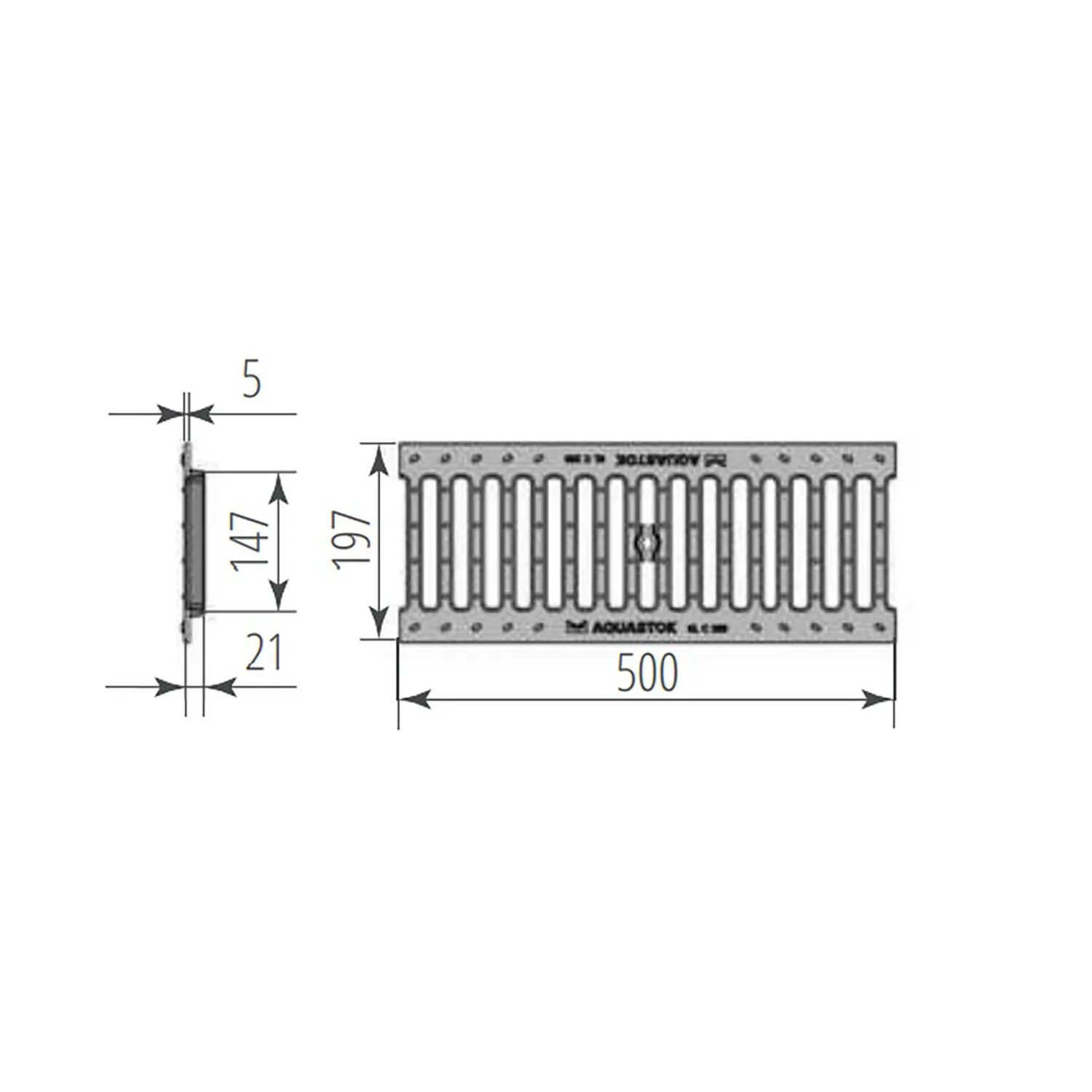
Класс нагрузки a c