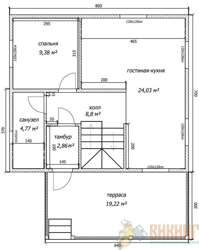
Каркасный дом чертежи 8 8