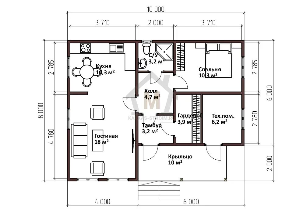
Каркасный дом 80 кв м проект