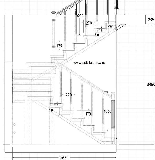
Калькулятор лестницы на второй этаж