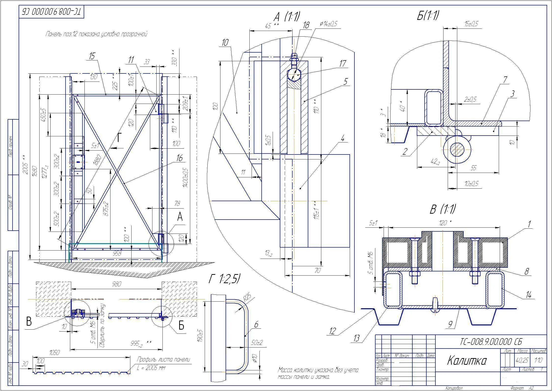
Калитка кмс