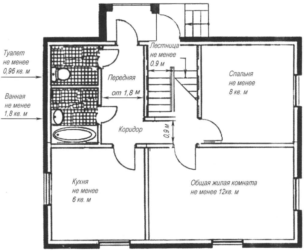
Какой ширины должен быть коридор