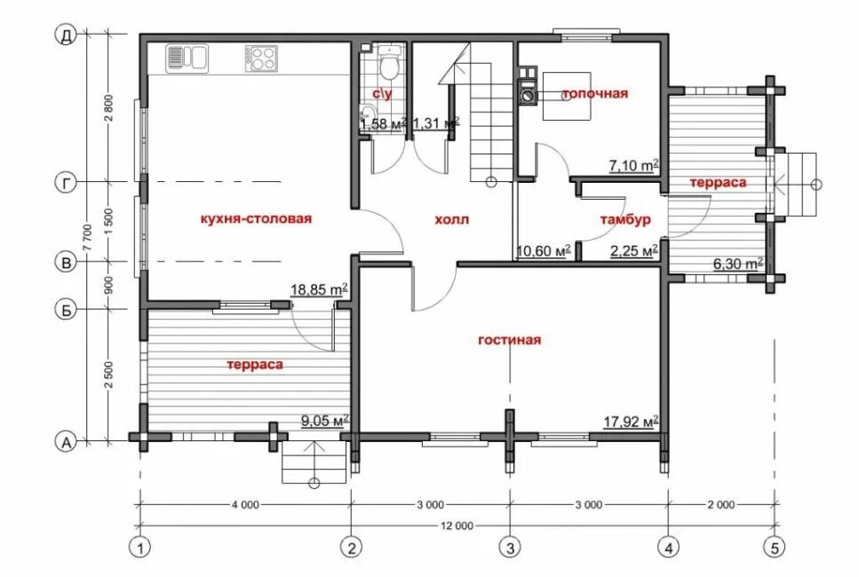
Какой размер котельной в доме