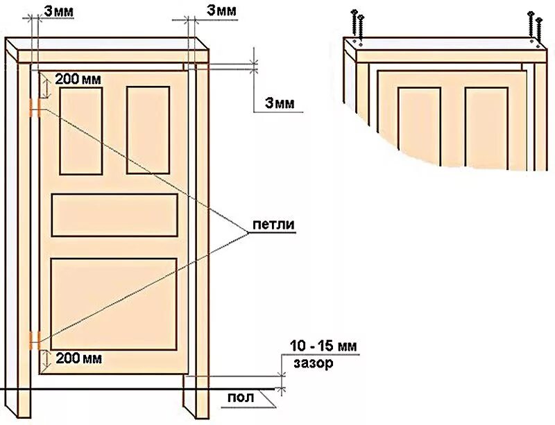
Какой должен быть зазор между рамой