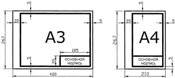
Какого размера рамка а3