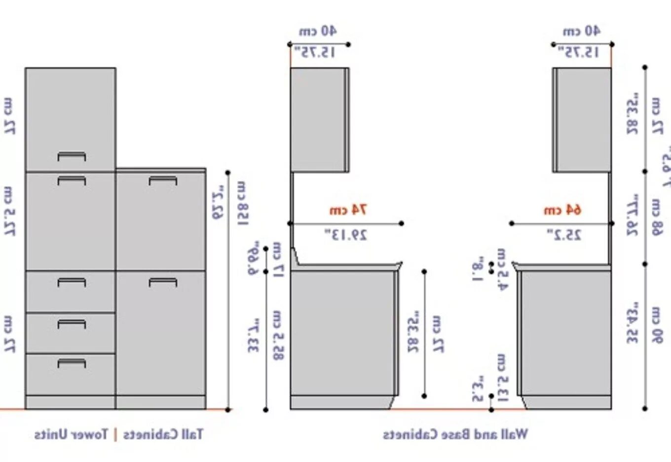
Каких размеров кухонные шкафы