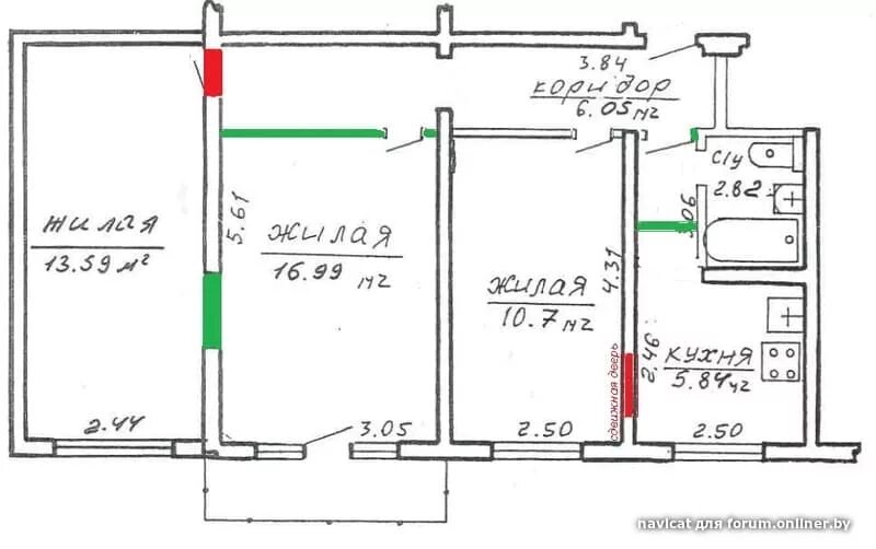
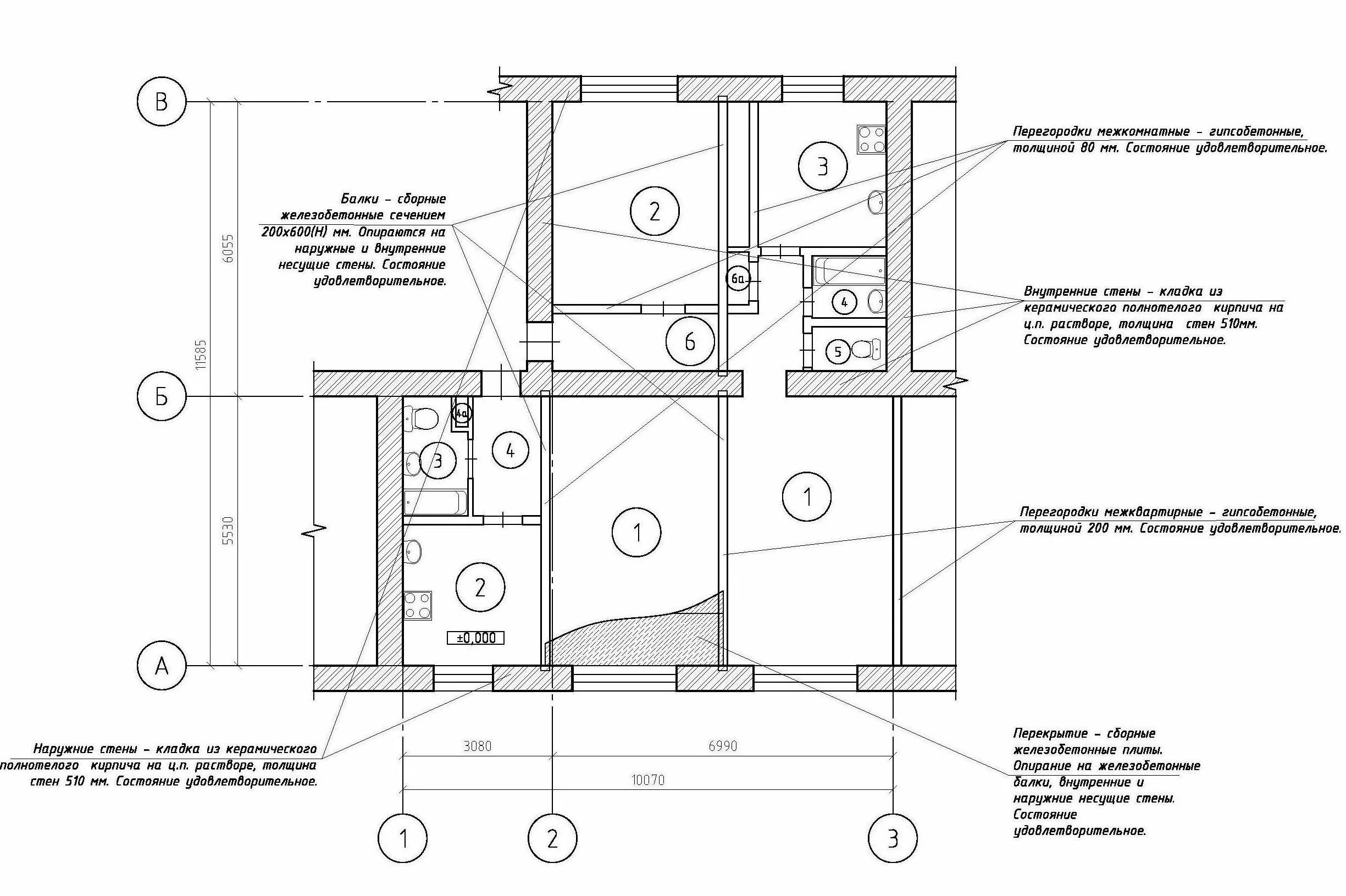
Какие стены несущие в хрущевке