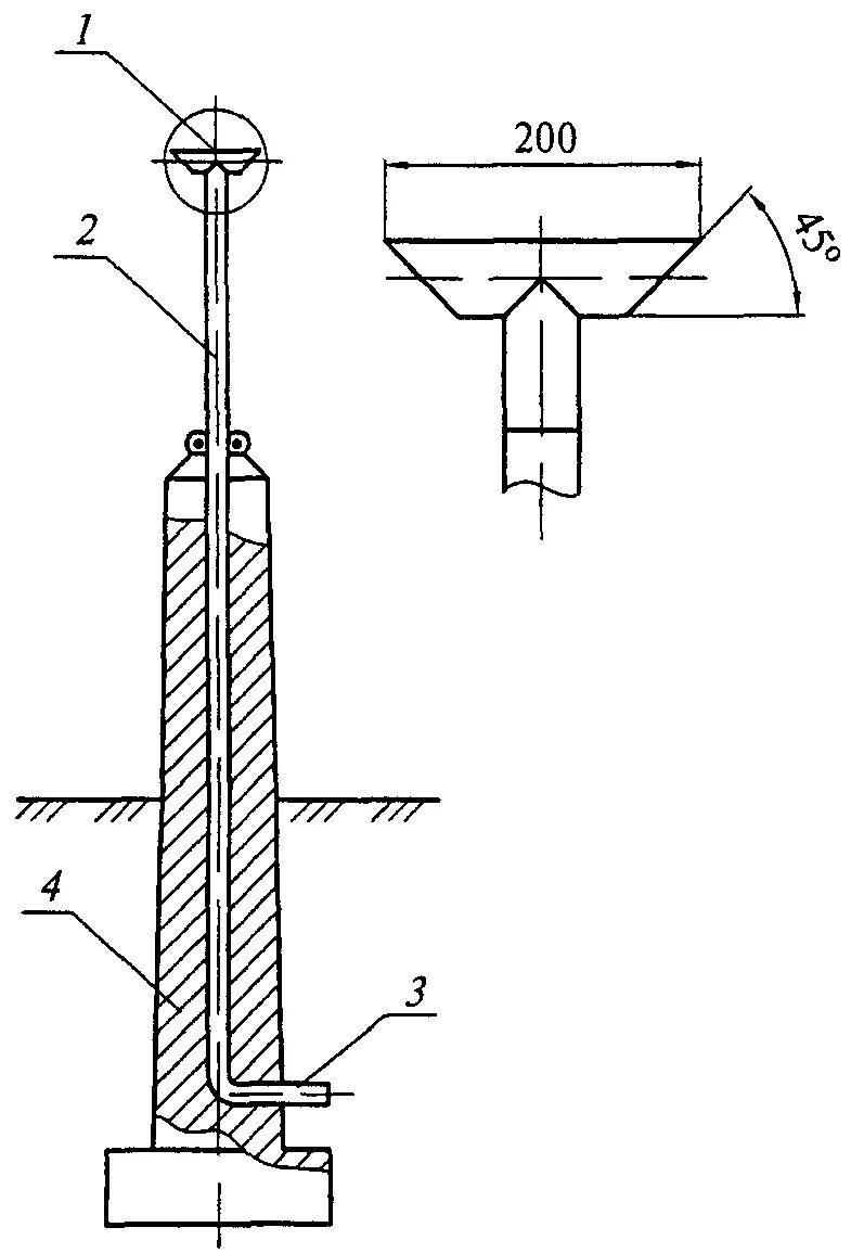
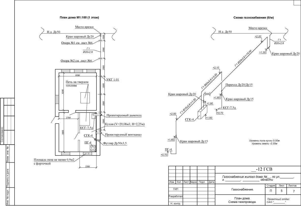
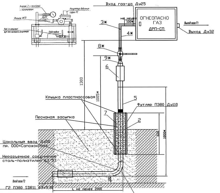
Какие сооружения на газопроводе