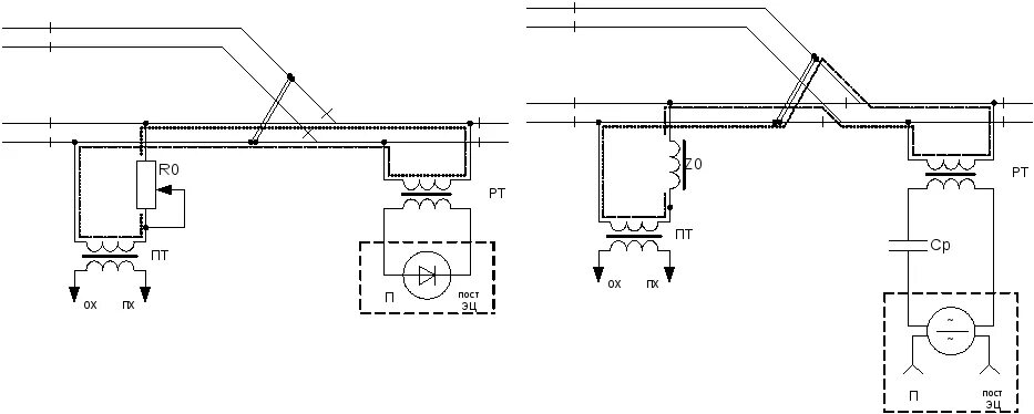
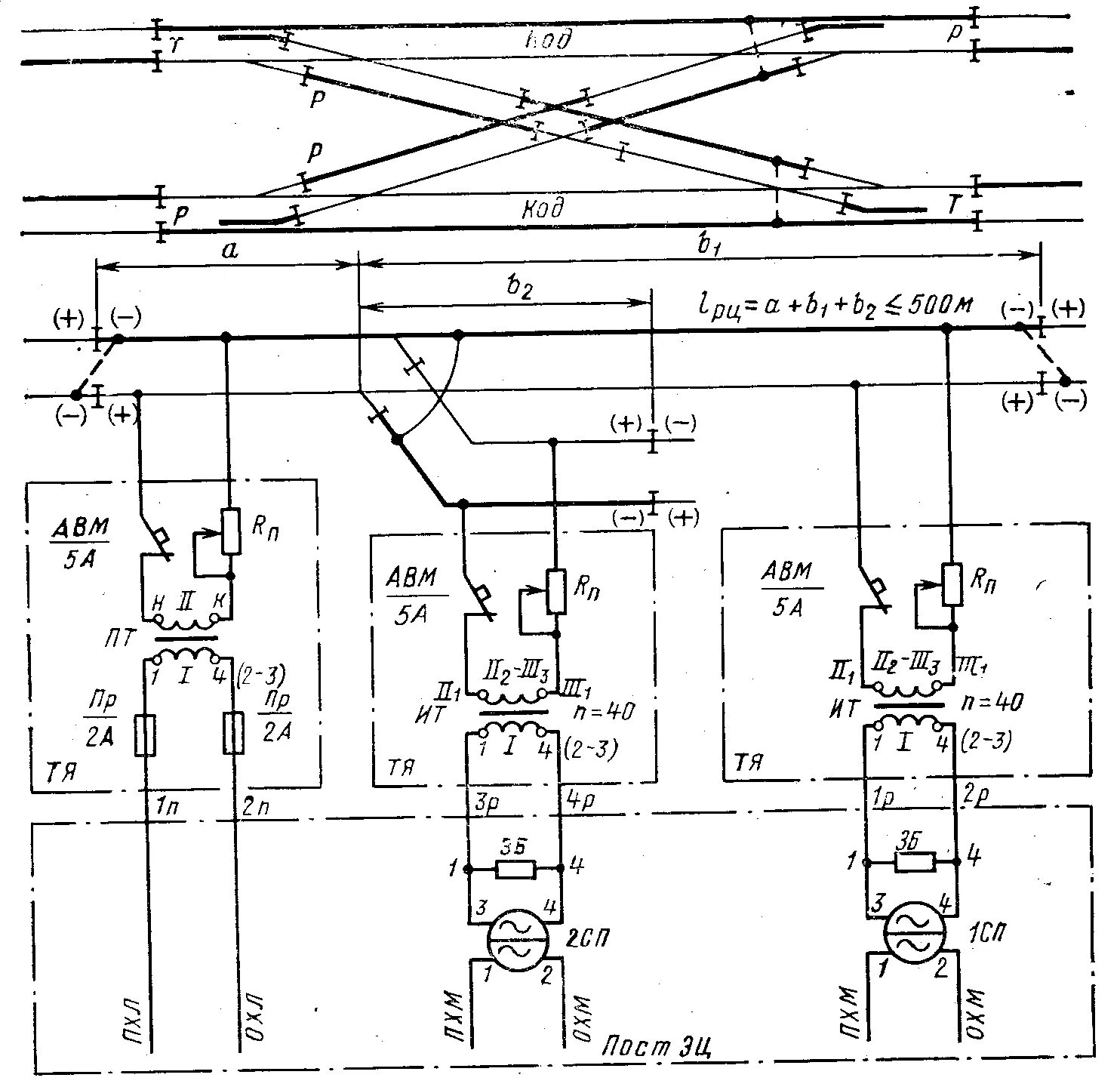
Какие рельсовые цепи применяются