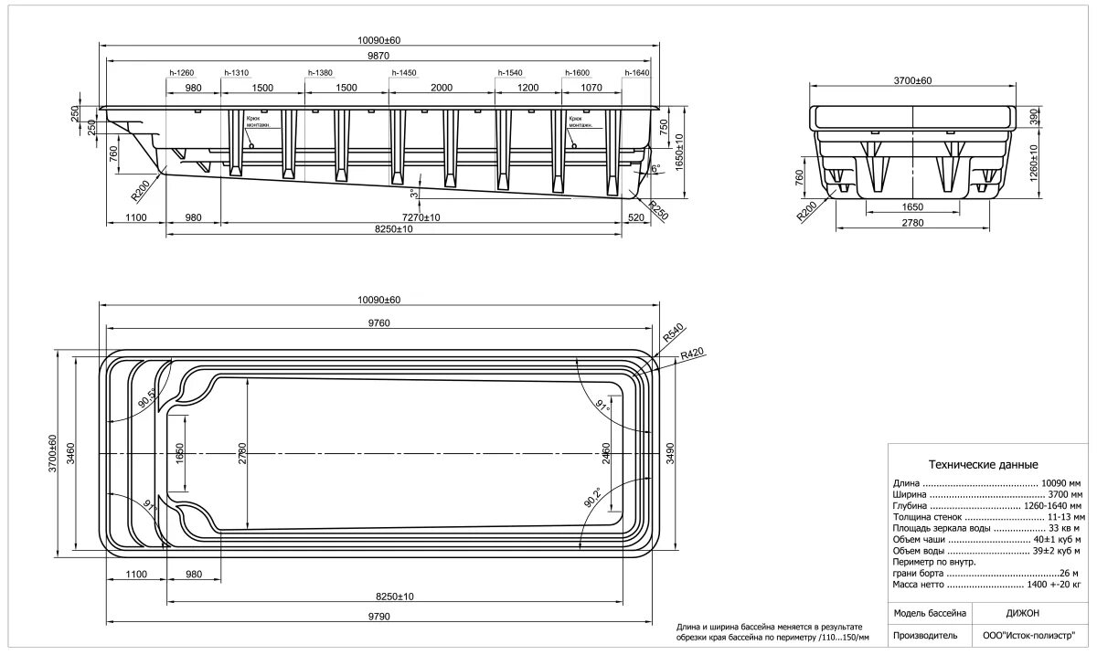
Какие бывают размеры бассейна