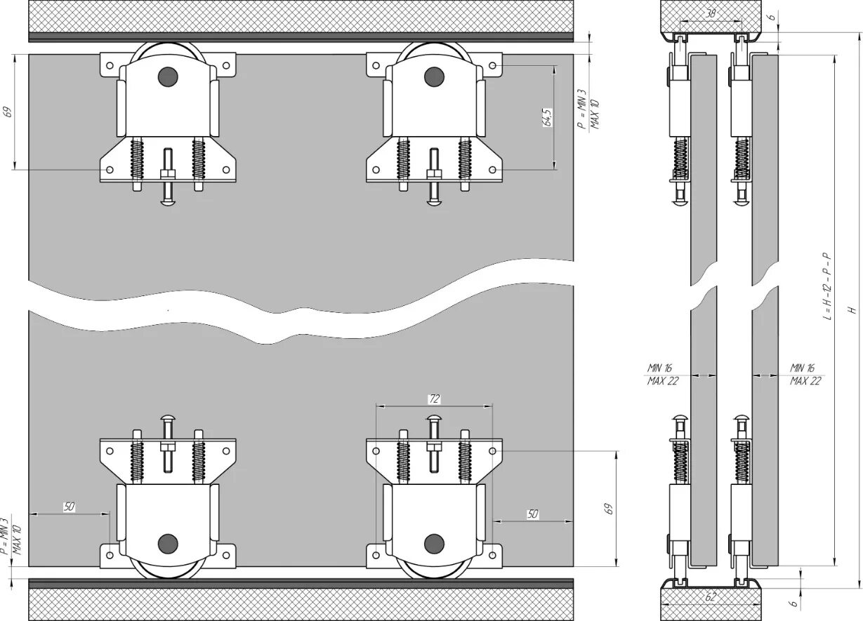
Как установить двери шкафа купе на роликах